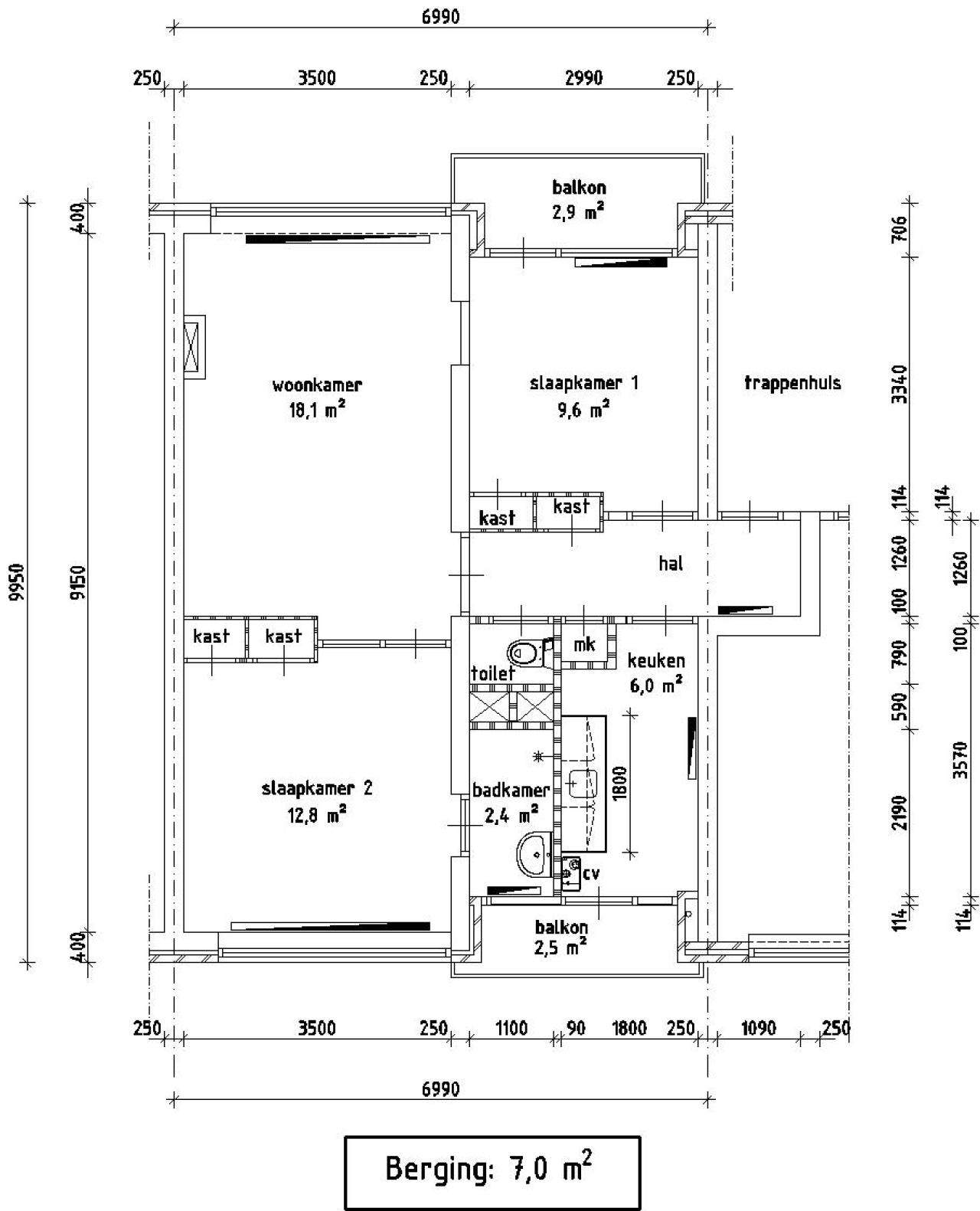
This first-floor apartment is located at Peelstraat 46 in Den Helder. The property has a total living area of 55.9 square meters and was built in 1962. It features two bedrooms, a living room, a kitchen, and a bathroom. The apartment also has a balcony and external storage.
The apartment is well-equipped with modern amenities, including electric cooking and a CV combi boiler. Additional features include an intercom system and a thermostatic shower faucet. The property is available for rent at € 615.45 per month, with a net rent of € 586.02 and service costs of € 29.43.
The apartment's layout is as follows: Bedroom 1 is 9.60 square meters, Bedroom 2 is 12.80 square meters, the living room is 18.10 square meters, the kitchen is 6.00 square meters, and the bathroom is 2.40 square meters. The external storage area is 7.00 square meters.
The property is managed by a corporation and is available for rent from January 12, 2026. Prospective tenants are required to agree to the established living rules and may need to provide an income declaration.