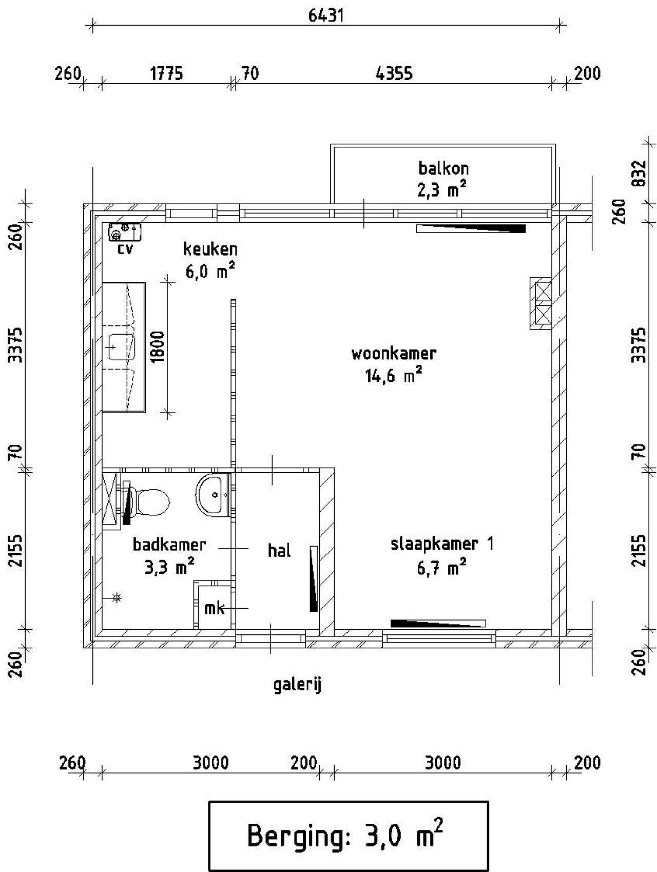
This first-floor apartment is located at Geleenstraat 34 in Den Helder. The apartment has a total living area of 33.6 square meters and was built in 1962. It features a combined living and sleeping area, a kitchen, a bathroom, and external storage.
The apartment is suitable for a maximum of two people and comes with amenities such as a balcony, electric cooking, and a thermostatically controlled shower faucet. The property also has a combi boiler for heating.
The rent is € 314.76 per month, which includes € 300.00 net rent and € 14.76 service costs. The apartment is expected to be available for rent from January 26, 2026.
The layout of the apartment is as follows: a living/sleeping area of 21.30 square meters, a kitchen of 6.00 square meters, a bathroom of 3.30 square meters, and external storage of 3.00 square meters. The property is managed by a corporation and can be viewed on Google Maps and Google Streetview.