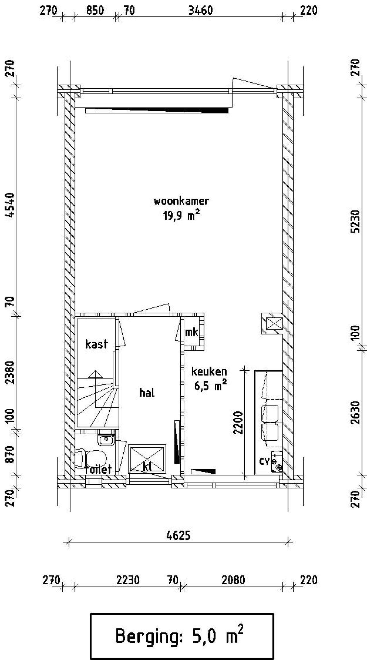
This charming single-family home is located at Lingestraat 10 in Den Helder. The property, built in 1958, offers a total living area of 64.6 square meters. It features three bedrooms, an open kitchen, and a garden.
The house is equipped with modern amenities, including electric cooking, solar panels, and a central heating boiler. Additional features include external storage, a thermostat-controlled shower faucet, and a trapdoor to the attic storage area.
The property's layout is as follows: three bedrooms measuring 10.50, 8.50, and 6.40 square meters, a living room of 19.90 square meters, a kitchen of 6.50 square meters, and a bathroom of 2.00 square meters. The total property size is 64.60 square meters.
The rental price is € 739.74 per month, with a net rent of € 731.93 and service costs of € 7.81. The property is available for rent from January 26, 2026.