Cet appartement est situé à Amstelstraat 16 à Den Helder et est disponible à la location. La propriété a une superficie habitable totale de 82,4 mètres carrés et comprend trois chambres, un salon, une cuisine, une salle de bain et un débarras extérieur. L'appartement a été construit en 1958.
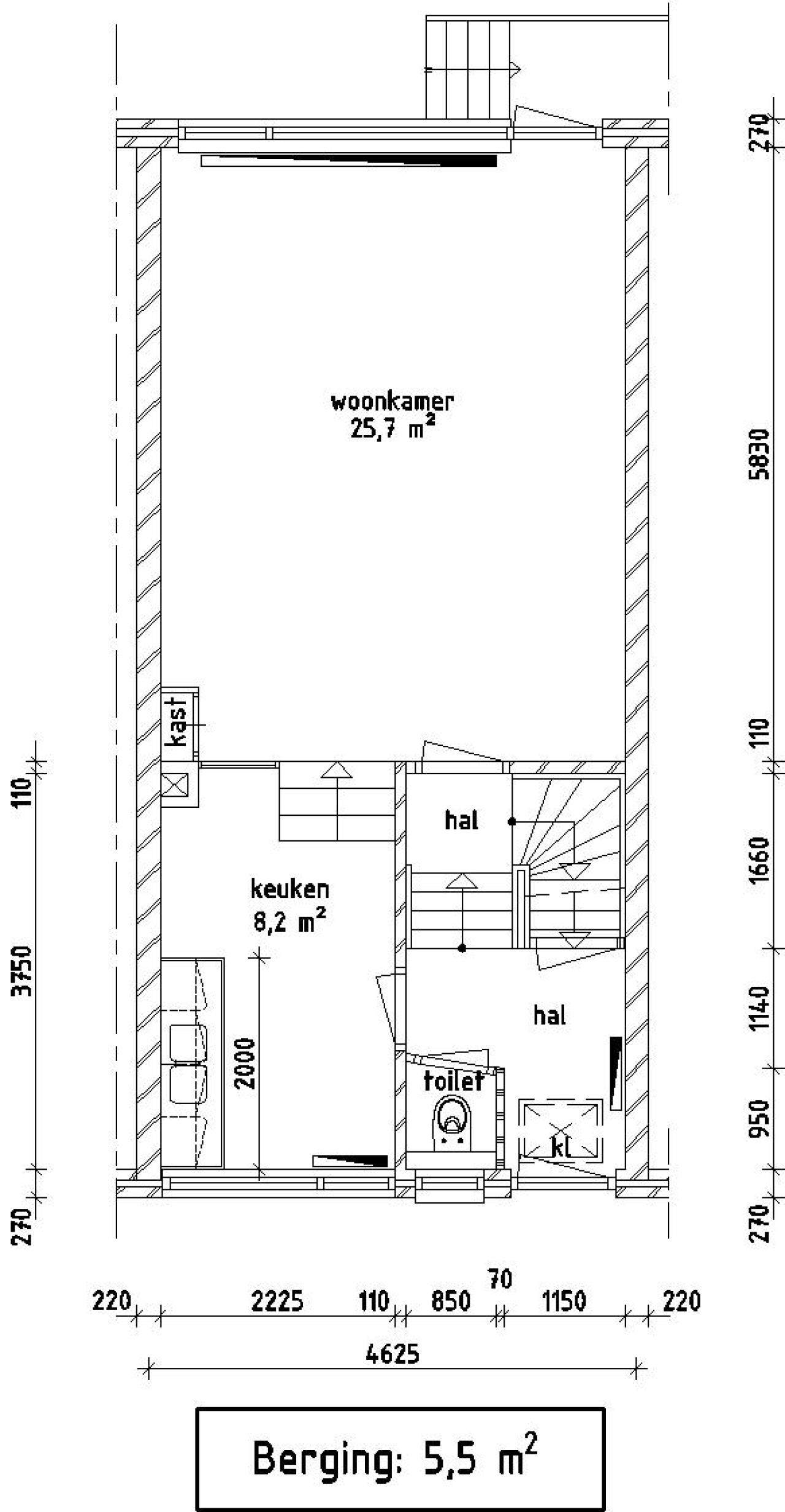
La propriété offre plusieurs commodités, dont un balcon, un jardin et une cuisine électrique. La présence de panneaux solaires est également une caractéristique notable. De plus, l'appartement est équipé d'une chaudière combinée pour le chauffage et dispose d'un robinet de douche thermostatique. L'agencement comprend un salon de 25,7 mètres carrés, deux chambres allant de 5,3 à 11 mètres carrés, une cuisine de 8,2 mètres carrés et une salle de bain de 2,3 mètres carrés.
Les caractéristiques de l'appartement en font une option attrayante pour ceux qui recherchent un espace de vie spacieux à Den Helder. L'inclusion d'un jardin et d'un balcon offre un espace extérieur supplémentaire. L'état général et les commodités de la propriété contribuent à son attrait.
L'emplacement de l'appartement à Amstelstraat 16 à Den Helder offre aux résidents un environnement de vie pratique et potentiellement calme, avec un accès aux commodités et services locaux. Les spécificités de la propriété, y compris sa taille et ses caractéristiques, la rendent adaptée à divers besoins.