This modern furnished 3-room apartment is located on the 7th floor of the luxurious 'Calypso' residential tower in the center of Rotterdam. The building boasts luxurious elements such as a reception, multiple elevators, a gym, and a conference room exclusively for residents. The apartment is close to Rotterdam Central station, concert hall De Doelen, cinema, and various shops, making it an ideal location for a couple or three students sharing an apartment.
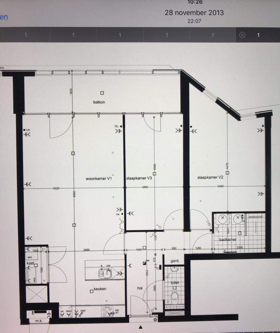
The apartment spans 89 m² and features an entrance hall with access to all rooms, a spacious living/dining room with an open kitchen and balcony access, and a modern kitchen equipped with a cooking island, fridge with freezer, microwave/oven combination, dishwasher, and induction cooking. Additionally, there is a storage room with a washing machine, a spacious bedroom with a double box spring and wardrobe, a second bedroom with a large bed and wardrobe, and a luxurious bathroom with a walk-in shower, design radiator, and double washbasin with mirror.
The apartment is fully furnished and includes utilities such as gas, water, electricity, heating, and air conditioning in the rent of €1,800 per month. Internet is available, and the apartment has an energy label A. The landlord is a private owner who is looking for a tenant aged between 18 and 25 years, preferably a student, with a minimum stay of 1 year.
The apartment is not suitable for pets, and there will be mixed gender roommates. The rent includes utilities, and the deposit is €1,800. The apartment is available from January 15, 2026, until July 31, 2027.