This senior residence is located at Middelzand 3218 in Julianadorp. The property has a total living area of 61.7 square meters and features 2 bedrooms. Built in 1975, it offers a comfortable living space for seniors. The residence is designed with senior-friendly features, including a level entrance and internal storage.
The property boasts a large garden and is equipped with modern amenities such as electric cooking and a central heating system with a combi-boiler. The bathroom is fitted with a thermostatic shower mixer tap, adding to the comfort and convenience. The residence is part of a corporation-managed housing stock, ensuring a certain level of maintenance and upkeep.
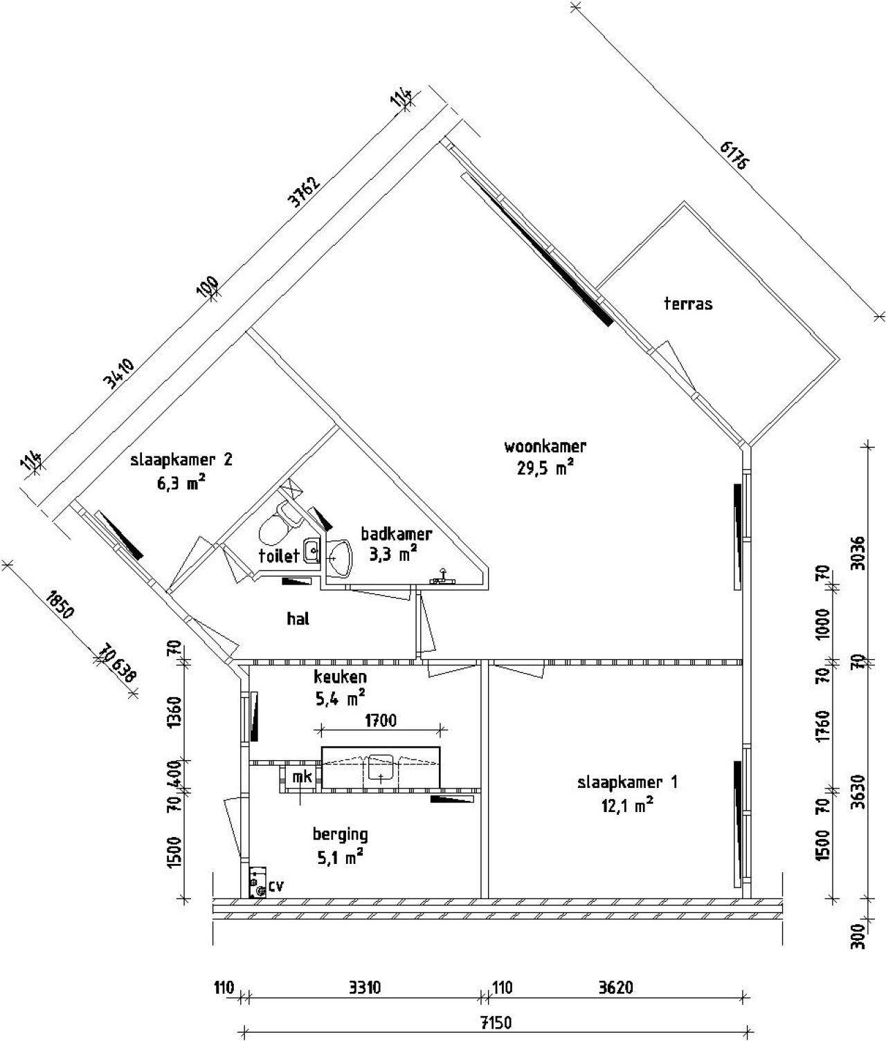
The layout of the residence includes two bedrooms, a living room, a kitchen, a bathroom, and internal storage. The rooms are distributed as follows: Bedroom-1 is 12.10 square meters, Bedroom-2 is 6.30 square meters, the living room is 29.50 square meters, the kitchen is 5.40 square meters, the bathroom is 3.30 square meters, and the internal storage is 5.10 square meters. The total living area is 61.70 square meters, making it a spacious accommodation for its occupants.
The residence is available for rent at €702.69 per month, with a net rent of €694.88 and service costs of €7.81. The property is preferably rented to candidates aged 65 or older, although younger candidates can apply and be placed on a waiting list. Prospective tenants will need to provide an income declaration from the tax authorities as part of the rental application process.