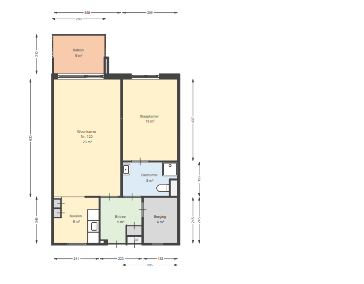
This senior apartment is located at Coehoorn van Scheltingaweg 120 in Heerenveen. The property is on the first floor of a building constructed in 1988 and features an elevator. The apartment has a living room of 28 m² and one bedroom of 13 m², along with an open kitchen. It also includes a balcony and storage facilities.
The apartment is designed for senior residents and has an energy label A, indicating high energy efficiency. The total living area is suitable for individuals or couples looking for a comfortable and convenient living arrangement in the heart of Heerenveen.
The rental price is € 650.07, which includes a base rent of € 566.17 and service costs of € 83.90. The service costs cover contributions to tenant interests and a service fund for maintenance. The property is available for rent from January 8, 2026, subject to certain income conditions for applicants.
The neighborhood is characterized by its central location in Heerenveen, offering easy access to local amenities and services. The apartment's design and facilities cater to the needs of senior citizens, providing a comfortable living environment.