This attractive single-family home is located at Havikstraat 7 in Den Helder. The property boasts a total living area of 74.6 square meters and was built in 1934. It features three bedrooms, a living room, kitchen, bathroom, and additional storage spaces including an external storage area and an attic accessible by a fixed staircase. The house is equipped with modern amenities such as electric cooking, solar panels, and a central heating combi-boiler. Additionally, it has a garden, providing a pleasant outdoor space.
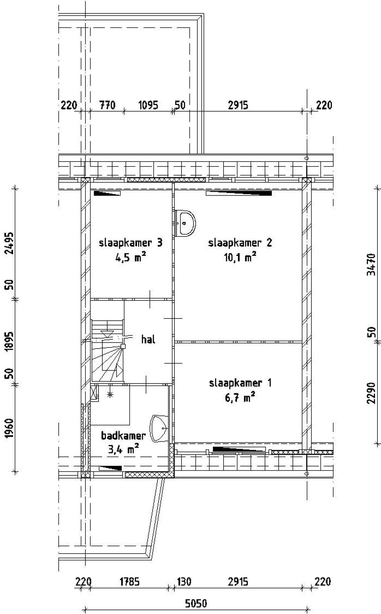
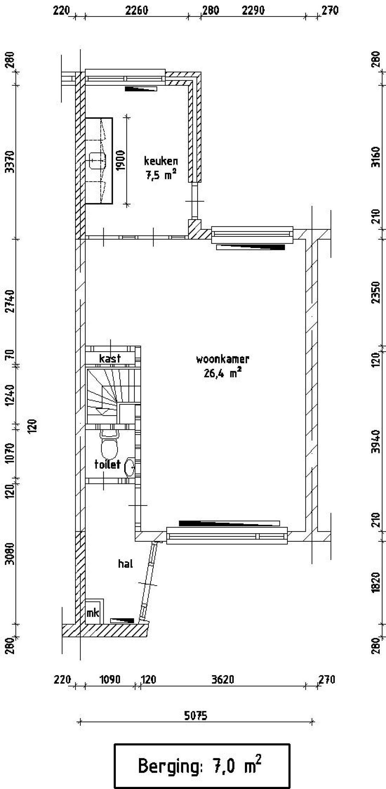
The interior layout is well-distributed with a living room of 26.4 square meters, a kitchen of 7.5 square meters, and bedrooms ranging from 4.5 to 10.1 square meters. The bathroom is 3.4 square meters, and there's a 7 square meter external storage area. The property also features a thermostatically controlled shower faucet, enhancing the comfort of the home.
The property is part of a housing corporation and is available for rent at €894.63 per month, with a net rent of €886.82 and service costs of €7.81. Prospective tenants are required to provide an income declaration from the tax authorities as part of the rental application process.
The combination of its historic charm, practical layout, and modern amenities makes this property an attractive option for those seeking a comfortable and well-appointed home in Den Helder.