
LUNTERO
Find your way home in the Netherlands with 20,000+ rental listings at your fingertips!
Site Navigation
Netherlands Rental Guides & Resources


© 2025 Luntero. All rights reserved.

LUNTERO
Find your way home in the Netherlands with 20,000+ rental listings at your fingertips!
Site Navigation
Netherlands Rental Guides & Resources


© 2025 Luntero. All rights reserved.
Den Helder
€910/ month + €226.94 service costs



Property agent
Woonmatch Kophn
View this listing on
Share this listing
Discover the most sought-after neighborhoods in Den Helder, perfect for finding your next Dutch rental. Explore the boroughs and areas locals love most.
Price
€910.00
Service Costs
€226.94
Available From
January 26, 2026
Available Until
November 25, 2025
Property Type
Apartment
Floor Number
3
Construction Year
1971
Bedrooms
3
Bathrooms
1
Heating Type
Central
Kitchen Type
Separate
Cooktop Type
Electric
Energy Source
District
Balcony
Building Facilities
Storage Present
Storage Size
8 m²
Minimum Age
65

Garage Box Burgemeester Ritmeesterweg 22, Den Helder - For Rent
1784 NV (Den Helder)
€270/ month


Garage Box Burgemeester Ritmeesterweg 22, Den Helder - For Rent
1784 NV (Den Helder)
€240/ month
Does the rent cover additional costs like utilities?
The monthly rent usually only covers the property itself. Services such as electricity, water, gas, and internet are often billed separately. Always review the listing or reach out to confirm what’s included.
What paperwork do I need to rent a property?
To submit an application, you’ll typically need a government-issued ID, recent proof of income (or a guarantor’s financial details), and possibly a work or study document. Specific requirements may be outlined in the property details.
How much time does it take to hear back about my application?
Responses to rental applications usually take a few days to a week, but this depends on the landlord’s process and the demand for the property. Be sure to check your email for updates or additional document requests.
Is it possible to adjust the rental price or conditions?
In most cases, landlords set fixed prices and conditions, but it never hurts to ask! Discussing details like longer leases or minor adjustments might be an option depending on the landlord.
What should I do if I have to move out before the lease ends?
If you need to leave early, you might be asked to find someone to take over your lease or pay a fee for breaking the contract. Check your rental agreement for details and talk to your landlord to explore your options.
Explore the latest properties added to Luntero. Find new apartments, houses, and studios across the Netherlands — updated daily to help you discover your next home faster.
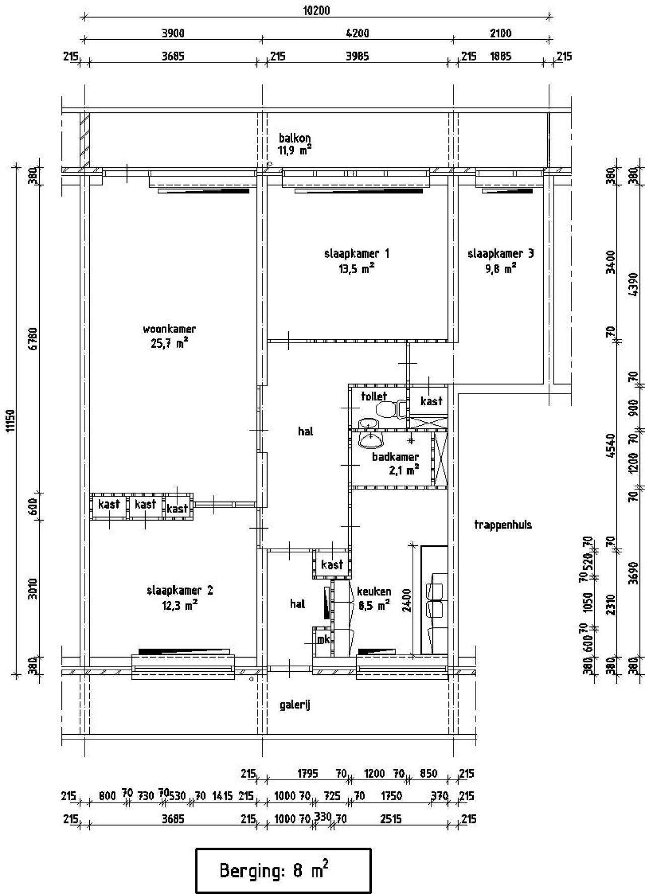
This apartment is located on the 3rd floor with elevator access at Gerrit Pietersz Blankmanstraat 254, Den Helder. The property has a total living area of 79.9 square meters and was built in 1971. It features three bedrooms, a living room, kitchen, bathroom, and external storage.
The apartment is equipped with modern amenities, including electric cooking, collective heating, intercom, and thermostatic shower faucet. It also has a balcony and is designated for tenants aged 65 and above. The property is managed by a corporation and is available for rent at €909.90 per month, including service costs.
The layout of the apartment includes three bedrooms measuring 13.50, 12.30, and 9.80 square meters, a living room of 25.70 square meters, a kitchen of 8.50 square meters, and a bathroom of 2.10 square meters. The external storage measures 8.00 square meters. The service costs include a prepayment for gas and water consumption.
The property is located in a well-equipped complex with a lift, making it suitable for seniors or those with mobility issues. The apartment's condition and amenities make it an attractive option for those seeking a comfortable living space in Den Helder.

€907.00 / month

€2,500.00 / month

€704.00 / month

€656.00 / month

€910.00 / month

€699.00 / month

€2,450.00 / month

€2,970.00 / month

€2,275.00 / month

€2,095.00 / month

€950.00 / month

€1,500.00 / month