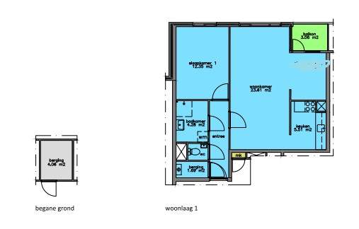
This senior apartment is located at Livingstonestraat 39 in Alkmaar's Daalmeer neighborhood. The apartment is situated on the second floor of a building with an elevator and has a total living area of 49 square meters. It features one bedroom with 12 square meters of space, a living room of 28 square meters, and a kitchen. The apartment is designed for seniors, being rollator-friendly and wheelchair-accessible, with features such as electric cooking and solar panels.
The apartment is part of a complex designed for seniors, offering a calm and secure living environment. Residents can participate in community activities in the shared spaces or in the nearby De Hofstaete complex. The building was constructed in 1991 and has an energy label A, indicating high energy efficiency.
The total rent for the apartment is €758.77, which includes a base rent of €709.77 and service costs of €49. The apartment is available for rent from January 29, 2026. Prospective tenants with a housing indication from the municipality are given priority for this residence.
The neighborhood offers a serene living environment, suitable for those looking for a peaceful and supportive community. The apartment's design and the complex's amenities cater to the needs of seniors, providing a comfortable and accessible living space.