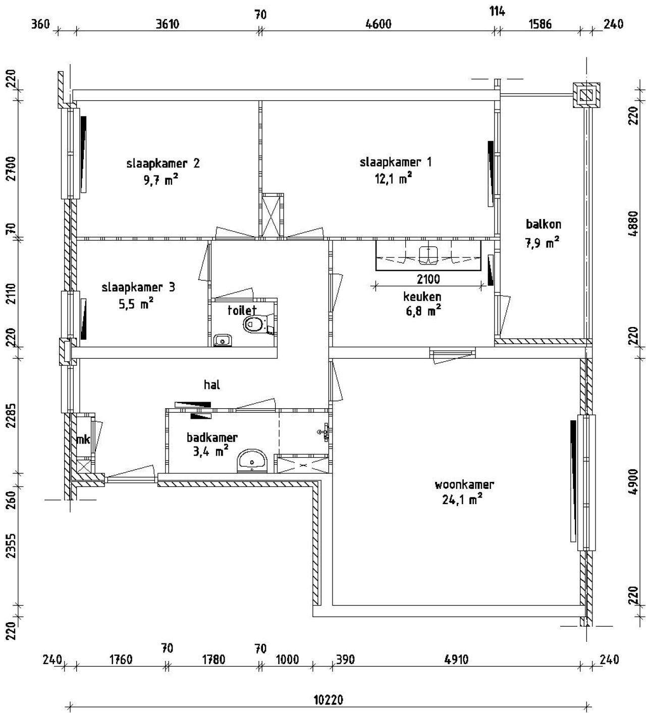
This first-floor apartment is located at Kanaalweg 303 in Den Helder. The property has a total living area of 61.6 square meters and features three bedrooms, a living room, a kitchen, and a bathroom. The apartment is equipped with electric cooking and has a collectively heated system. Additional features include a balcony, external storage, intercom, and a thermostatic shower mixer.
The apartment's layout is as follows: three bedrooms measuring 12.10, 9.70, and 5.50 square meters, a living room of 24.10 square meters, a kitchen of 6.80 square meters, and a bathroom of 3.40 square meters. The property was built in 1983.
The rent is €783.58 per month, with additional service costs of €220.65, making the total monthly cost €1,004.23. The service costs include a prepaid amount for gas and water consumption.
The apartment is managed by a housing corporation and is available for rent starting January 26, 2026. The property can be viewed on Google Maps and Google Streetview for a better understanding of the location and surroundings.