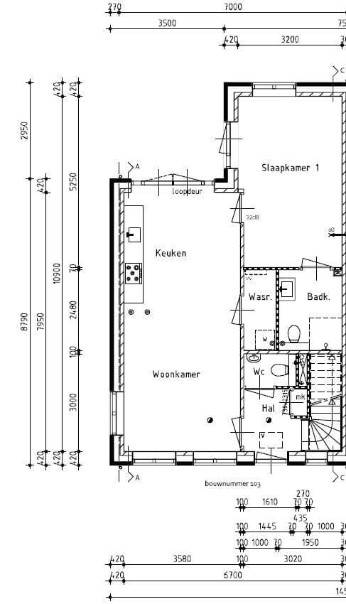
Deze schitterende tweekapper is gelegen in de Rozenbuurt van Zwaag en is geschikt voor gelijkvloers wonen. De woning beschikt over een slaapkamer en een complete badkamer op de begane grond, tevens zijn er op de eerste verdieping drie extra slaapkamers, een ruime woonkamer en een keuken in rechte opstelling. Het pand maakt deel uit van een nieuwbouwontwikkeling en is voorzien van moderne voorzieningen, waaronder meerdere zonnepanelen en een losstaande berging. De keuken is uitgerust met een inductiekookplaat, combi-oven, afzuigkap, koel-/vriescombinatie en een vaatwasser. De moderne badkamer beschikt over een wandcloset, inloopdouche en een wastafelmeubel. De woning is volledig geïsoleerd en voorzien van vloerverwarming op elke verdieping, met een energielabel A+++. De oplevering van de woning wordt verwacht medio februari 2026. De huurovereenkomst is voor onbepaalde tijd, met een waarborgsom van twee maanden huur. De woning heeft een woonoppervlakte van 107 m² en een perceeloppervlakte van 114 m². Het perceel beschikt over een tuin van 24 m², gelegen op het oosten en bereikbaar via een achterpad. Tevens is er een vrijstaande houten berging bij de woning. Parkeren is mogelijk via openbare parkeergelegenheid. De wijk Zwaag biedt een prettige woonomgeving. De woning is ontworpen om senioren-toegankelijk te zijn. Het pand kenmerkt zich door zijn moderne en ruime opzet, waardoor het een ideale woonruimte is voor wie op zoek is naar comfort en gemak. De buurt is omgeven door voorzieningen en diensten, wat het een geweldige plek maakt om te wonen. De locatie en kenmerken van het pand maken het een uitstekende keuze voor wie op zoek is naar een moderne en ruime woning. De woning is gebouwd in 2025 en heeft in totaal 5 kamers, waaronder 4 slaapkamers. Het pand is volledig uitgerust met moderne voorzieningen, wat het een uitstekende keuze maakt voor wie op zoek is naar een comfortabele en gemakkelijke woonruimte.