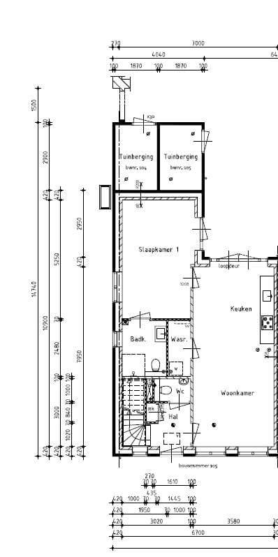
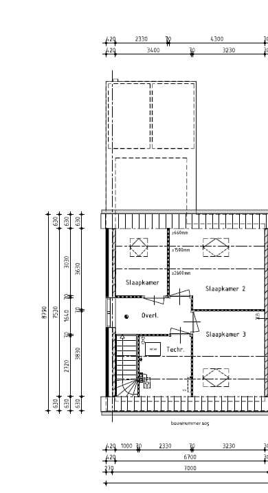
Deze prachtige hoekwoning is gelegen in de Rozenbuurt van Zwaag. De woning is levensloopbestendig en beschikt op de begane grond over een slaapkamer en een complete badkamer. De eerste verdieping telt drie extra slaapkamers, een ruime woonkamer en een keuken in rechte opstelling. De woning maakt deel uit van een nieuwbouwproject en biedt moderne voorzieningen.
De woning beschikt over diverse noemenswaardige kenmerken, waaronder meerdere zonnepanelen, een aparte berging en een moderne badkamer met wandcloset, inloopdouche en badmeubel. De keuken is voorzien van een inductiekookplaat, combi-oven, afzuigkap, koel-/vriescombinatie en vaatwasser. De woning heeft een A+++ energielabel en vloerverwarming op elke verdieping.
De oplevering van de woning wordt verwacht medio februari 2026. De huurovereenkomst is voor onbepaalde tijd, met een waarborgsom ter hoogte van twee maanden huur. Om in aanmerking te komen, dient men te voldoen aan de inkomenseis van 3,5 keer de kale maandhuur. De woning heeft een totale woonoppervlakte van 103 m² en een berging van 5 m², met een totale perceeloppervlakte van 114 m².
De buurt biedt een prettige woonomgeving, met de woning gelegen in een woonwijk. De woning beschikt over een tuin op het zuiden met een afmeting van 22 m², toegankelijk via een achterom. Parkeren is mogelijk in de openbare ruimte. De woning is ontworpen om levensloopbestendig te zijn, waardoor het een ideale keuze is voor wie op zoek is naar een comfortabele en gemakkelijke woonoplossing.