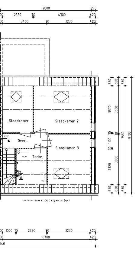
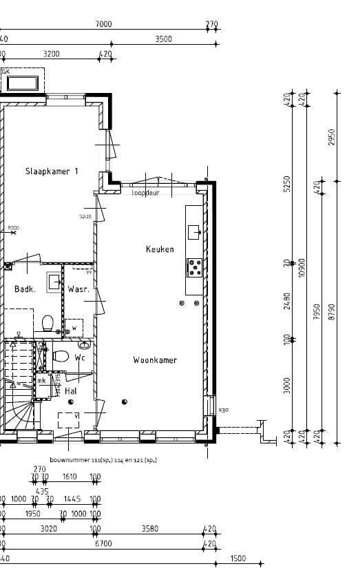
Deze nieuwbouwwoning is gelegen in de Rozenbuurt van Zwaag. De woning is levensloopbestendig en beschikt over een slaapkamer en een complete badkamer op de begane grond. De eerste verdieping telt drie extra slaapkamers, een ruime woonkamer en een keuken in rechte opstelling. De woning zal naar verwachting medio februari 2026 worden opgeleverd.
De woning beschikt over diverse noemenswaardige kenmerken, waaronder meerdere zonnepanelen, een losstaande berging en 'sausklaar' afgewerkte muren. De keuken is uitgerust met een inductiekookplaat, combi-oven, afzuigkap, koel-/vriescombinatie en vaatwasser. De moderne badkamer is voorzien van een wandcloset, inloopdouche en wastafelmeubel. De woning heeft een energielabel A+++ en vloerverwarming op elke verdieping.
De huurovereenkomst is voor onbepaalde tijd, met een borgsom gelijk aan twee maanden huur. Huurders dienen te voldoen aan de inkomenseis van 3,5 keer de kale huurprijs als bruto (gezamenlijk) inkomen, of een combinatie van inkomen en eigen vermogen. De woning heeft een totale woonoppervlakte van 103 m² en een externe bergruimte van 5 m², gelegen op een perceel van 114 m².
De woning is toegankelijk ontworpen, met een woonoppervlak op de begane grond en is geschikt voor senioren. De woning is volledig geïsoleerd, met vloerverwarming en een warmtepomp. De buitenruimte omvat een voor- en achtertuin, waarbij de achtertuin 24 m² meet en op het oosten is gelegen. Parkeren is mogelijk via openbare parkeergelegenheid in de nabije omgeving.