À LOUER : Découvrez cette charmante maison située au 39 Kornelis van Tollaan dans le quartier familial de 's-Gravenland, Rotterdam. Cette maison magnifiquement meublée s'étend sur 151 m² et dispose de 5 chambres spacieuses, ce qui la rend parfaite pour les familles à la recherche de confort et de sécurité. La région est connue pour ses rues calmes, avec des aires de jeux juste au coin de la rue, garantissant un environnement sécurisé pour les enfants. Profitez du joli jardin qui complète la propriété, offrant un endroit idéal pour des réunions de famille ou de détente.
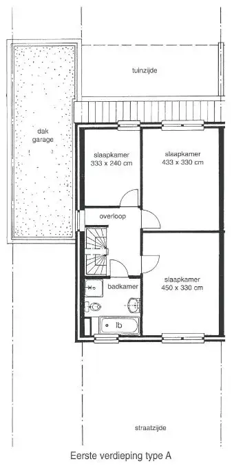
L'agencement de la maison est bien pensé, avec au rez-de-chaussée une entrée, un toilette pratique, un espace de rangement et un salon accueillant qui se connecte à la cuisine et offre un accès au jardin. Au premier étage, vous trouverez trois chambres confortables et une salle de bain moderne, tandis que le deuxième étage abrite une chambre supplémentaire, offrant suffisamment d'espace pour tout le monde.
Veuillez noter que cette propriété n'est pas adaptée aux étudiants ou aux colocataires, et les demandes de ces personnes ne seront pas traitées. Les conditions de location exigent un revenu d'au moins trois fois le prix de location brut, avec une durée minimale de location d'un an. La maison sera disponible à la location à partir du 1er mars 2025, avec un dépôt à discuter, mais d'au moins un mois de loyer.
Cette maison est équipée de double vitrage pour l'isolation et dispose d'une chaudière de chauffage central pour le chauffage et l'eau chaude, garantissant un environnement de vie confortable. Le label énergétique est classé C, reflétant son efficacité. Des places de parking sont disponibles sur terrain privé, ajoutant à la commodité de cette charmante maison familiale.