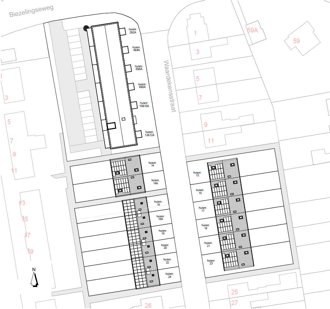
Cette maison unifamiliale, située au Waardekensstraat 18 à Kapelle, fait partie d’un nouveau développement par Beveland Wonen. La propriété devrait être achevée au cours du troisième ou quatrième trimestre 2026. La maison dispose de trois chambres, d’un grand salon et d’une cuisine ouverte. La surface habitable totale est d’environ 103 mètres carrés.
La propriété dispose de plusieurs commodités modernes, notamment une pompe à chaleur pour le chauffage, des panneaux solaires et un chauffage par le sol. L’absence de raccordement au gaz en fait une maison économe en énergie, l’électricité étant utilisée pour la cuisson et d’autres besoins. La présence de panneaux solaires et d’une pompe à chaleur garantit que la maison est neutre en énergie. La propriété comprend également un jardin et des installations de rangement.
La maison est conçue avec un accent sur la durabilité, affichant une étiquette énergétique A++++. Le loyer total de la propriété est de 859,74 € , comprenant un loyer de base de 731,93 € et des frais de performance énergétique de 127,81 €. La propriété est idéale pour ceux qui recherchent un espace de vie moderne et écologique à Kapelle.
Le quartier convient bien aux familles et aux personnes recherchant un environnement de vie paisible. Avec sa proximité des commodités locales et son design moderne, cette propriété représente une excellente opportunité pour ceux qui cherchent à louer une nouvelle maison à Kapelle.