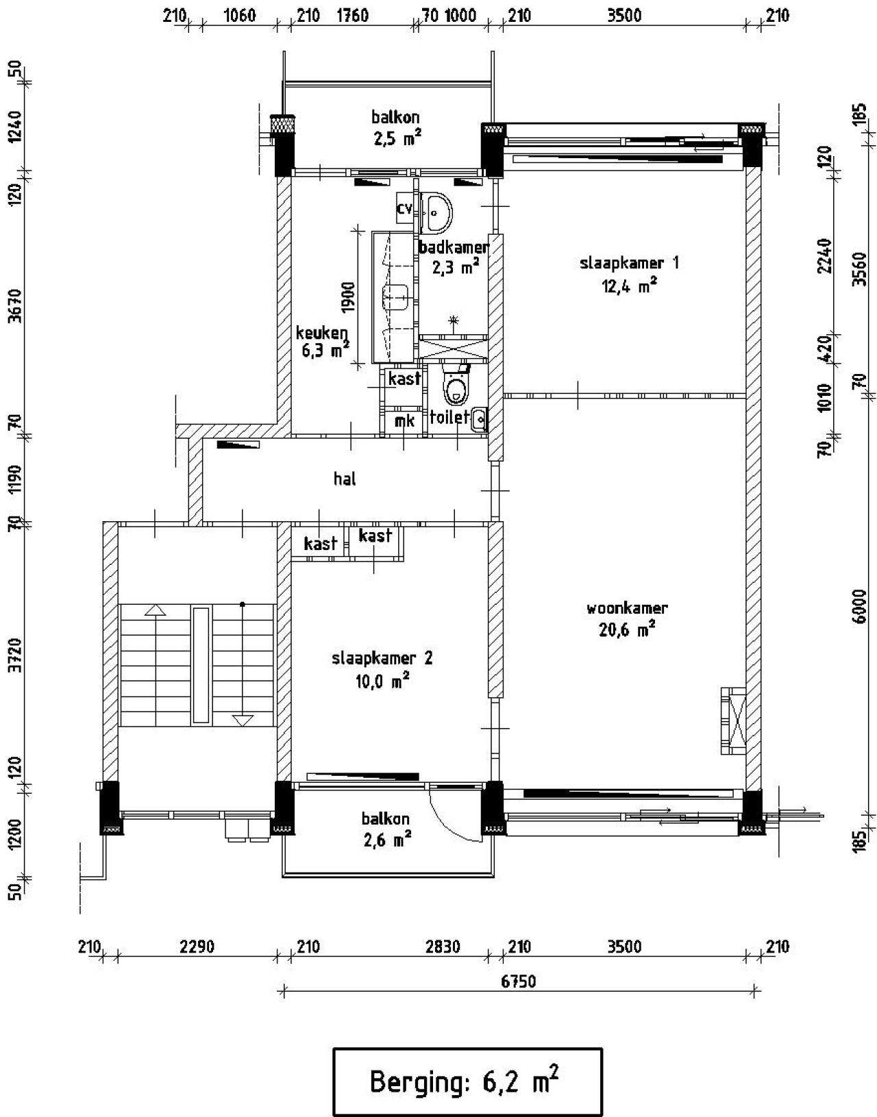
Cet appartement est situé au 3ème étage, Waddenzeestraat 152 à Den Helder. La propriété a une superficie habitable totale de 57,85 mètres carrés et a été construite en 1958. Il comprend 2 chambres, un salon, une cuisine et une salle de bain. L'appartement est équipé d'installations modernes telles que la cuisson électrique et des panneaux solaires.
L'appartement dispose d'un balcon et d'une pièce de rangement extérieure. Le système de chauffage est une chaudière combinée CV. Les caractéristiques supplémentaires comprennent un interphone et un robinet de douche thermostatique. La propriété est gérée par une société et il existe des règles et réglementations spécifiques auxquelles les locataires doivent adhérer.
Le loyer est de 649,26 € par mois, y compris 15,57 € de charges. Le loyer net est de 633,69 €. La propriété est disponible à la location à partir du 13 février 2026. La date limite de candidature est le 30 décembre 2025. Les locataires potentiels doivent savoir qu'une déclaration de revenus des autorités fiscales pourrait être nécessaire.
Le quartier est facilement accessible et la propriété peut être consultée sur Google Maps et Google Streetview. L'appartement est une excellente option pour ceux qui recherchent un espace de vie confortable et bien équipé à Den Helder.