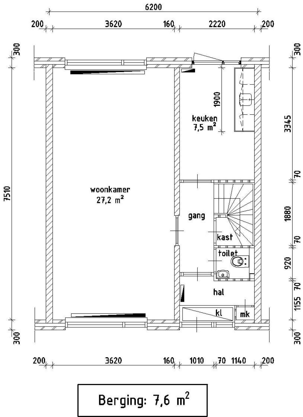
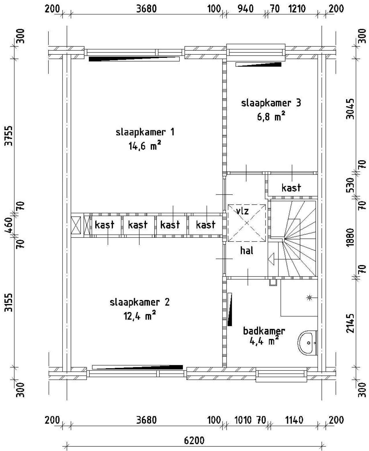
Cette maison unifamiliale, située au Torplaan 5 à Den Helder, est disponible à la location. La propriété, construite en 1967, offre une surface habitable totale de 90,2 mètres carrés. Elle comprend trois chambres, un salon, une cuisine, une salle de bains et des espaces de rangement supplémentaires, y compris un espace de rangement extérieur et un grenier accessible par une échelle escamotable.
La propriété est bien équipée de commodités modernes, notamment des plaques de cuisson électriques, des panneaux solaires et un système de chauffage central avec une chaudière combinée. D'autres caractéristiques incluent des toilettes séparées, un mitigeur de douche thermostatique et un jardin. La disposition de la propriété est pratique, avec un total de trois chambres de tailles variées, la plus grande mesurant 14,60 m² et la plus petite 6,80 m².
L’emplacement de la propriété à Den Helder est pratique, le quartier offrant diverses commodités. L’adresse exacte et les environs peuvent être consultés sur Google Maps ou Google Street View pour mieux comprendre l’emplacement et ses alentours.
Les futurs locataires doivent noter qu’un certificat de revenus délivré par l’administration fiscale sera requis dans le cadre de la demande de location. Il s’agit d’une exigence standard pour les demandes de location aux Pays-Bas, garantissant que les locataires remplissent les critères de revenu nécessaires pour le bien.