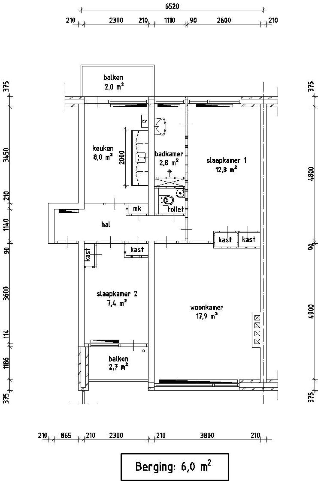
Cet appartement au premier étage est situé à Schout en Schepenenstraat 260, Den Helder. La propriété, construite en 1967, offre une surface habitable totale de 54,9 mètres carrés. Il comprend deux chambres, un salon, une cuisine et une salle de bain. L'appartement dispose d'un balcon et d'un débarras extérieur.
L'appartement est divisé en deux chambres, mesurant respectivement 12,80 m2 et 7,40 m2, un salon de 17,90 m2, une cuisine de 8,00 m2 et une salle de bain de 2,80 m2. Il y a aussi un espace de stockage de 6,00 m2. La propriété est équipée d'équipements modernes tels que la cuisson électrique et une chaudière combinée pour le chauffage.
Les caractéristiques supplémentaires comprennent un système d'interphone et un mitigeur thermostatique de douche. La propriété est gérée par une société et la date de début de location prévue est le 27 janvier 2026. Le loyer net est de 560,74 € par mois, avec des frais de service supplémentaires de 27,73 €, ce qui porte le loyer mensuel total à 588,47 €.
L'appartement est situé dans un endroit pratique à Den Helder, avec diverses commodités probablement à proximité. La disposition, la taille et les caractéristiques de la propriété en font une option attrayante pour ceux qui recherchent un espace de vie confortable dans la région.