Ce magnifique appartement est situé dans le quartier calme et verdoyant de Houtwijk à La Haye. La propriété se trouve à distance cyclable du centre-ville et de la plage, et à distance de marche de divers commerces, restaurants et transports en commun. L'appartement fait partie d'un complexe moderne et offre un espace de vie confortable.
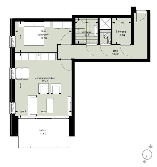
L'appartement comprend un salon spacieux avec une cuisine ouverte équipée d'appareils modernes tels qu'un réfrigérateur, un congélateur, une hotte aspirante, une plaque de cuisson, un lave-vaisselle et un four. La terrasse ensoleillée est accessible depuis le salon, offrant un agréable espace extérieur. La propriété comprend également une chambre spacieuse et une salle de bain moderne avec une douche à l'italienne, un meuble vasque et un sèche-serviettes chauffant.
Les caractéristiques supplémentaires de l'appartement comprennent des toilettes séparées et une remise. La propriété est disponible à la location pour 1 650 € par mois, hors charges de 45 € par mois. La période de location est de 12 mois minimum, et le revenu requis est trois fois le loyer mensuel brut. La caution est égale à deux mois de loyer de base.
L'appartement est situé au premier étage, avec une entrée commune au rez-de-chaussée. La propriété a été construite entre 2011 et 2020 et a une superficie habitable de 64 mètres carrés.