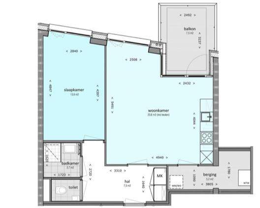
Cet appartement non meublé est situé au Maria Stuartplein à La Haye. Le loyer est de 1050 € par mois, hors charges. L'appartement a une superficie habitable totale de 52 mètres carrés. Le type de contrat est A ou B, et la durée de la location est indéterminée. Une visite est possible sur demande en contactant le propriétaire.
L'appartement dispose d'un salon privé, d'une cuisine privée, d'une salle de bain privée et de toilettes privées. Internet est disponible. La propriété a une étiquette énergétique A. La politique concernant les animaux domestiques est à négocier, mais il est mentionné que les animaux ne sont pas autorisés. Le propriétaire exige une inscription.
Le propriétaire recherche des locataires qui sont des étudiants, des étudiants qui travaillent, des professionnels qui travaillent ou des personnes à la recherche d'un emploi. Le nombre idéal de locataires est de 2, sans exigences spécifiques d'âge ou de sexe. La durée du séjour n'est pas spécifiée. Le propriétaire, Martin, peut être contacté pour plus d'informations et pour organiser des visites.
Les frais supplémentaires comprennent une caution de 2100 €. L'appartement est disponible à partir du 30 décembre 2025. Le propriétaire est ouvert à la négociation concernant les animaux domestiques.