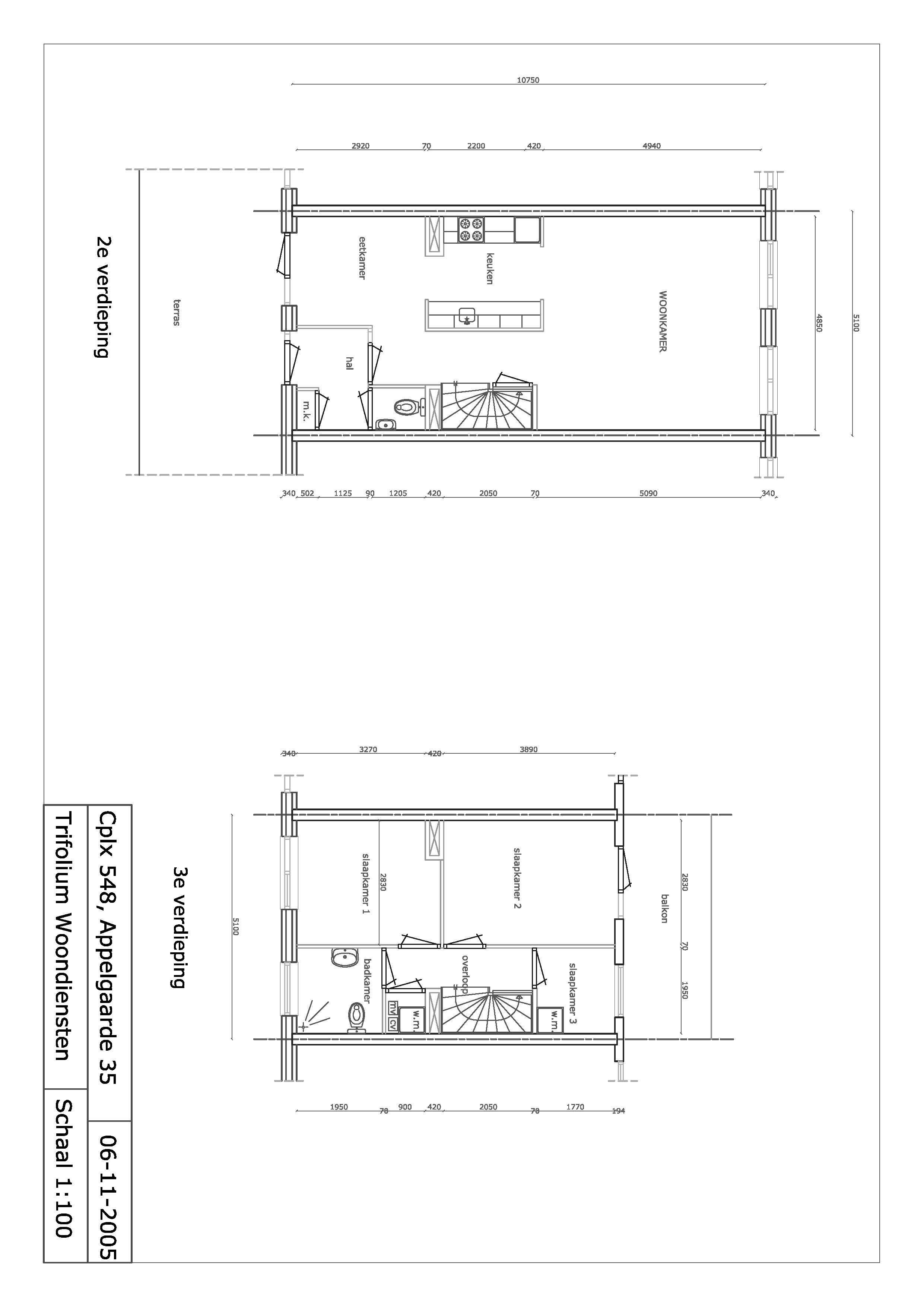
Cette maisonnette est située dans le quartier de Waterrijk à Boskoop, à quelques pas du centre-ville. La propriété est située au premier étage et comprend 3 chambres au total. Le salon s'étend sur 32 mètres carrés, tandis que les chambres mesurent respectivement 11, 10 et 9 mètres carrés. La cuisine est de style ouvert, ajoutant à la sensation d'espace dans le logement. Des espaces de rangement sont disponibles dans l'unité.
Construite en 2001, la propriété bénéficie de normes de construction modernes et est équipée du chauffage central via une chaudière combinée. La classification énergétique de la propriété est A, indiquant un haut niveau d'efficacité énergétique. L'accès à la propriété se fait par ascenseur, améliorant son accessibilité.
Le quartier de Waterrijk offre un environnement de vie agréable. La proximité du centre permet aux résidents d'accéder facilement aux commodités locales. L'agencement et les caractéristiques de la propriété en font une option attrayante pour ceux qui recherchent une maison spacieuse et bien équipée. L'orientation sud des balcons des unités supérieures ajoute un aspect agréable à la propriété.
Comme pour toute propriété, les locataires potentiels doivent être conscients qu'ils devront entreprendre certains travaux de finition pour adapter la propriété à leurs préférences. Cela comprend des tâches telles que le papier peint, la peinture et la pose de revêtements de sol. Le propriétaire fournit la propriété dans un état de base, conformément aux normes de propreté, d'intégrité et de sécurité.
Les frais de location comprennent un loyer de base de 713,02 € et des charges de 28,31 €, soit un total de 741,33 €. La propriété est louée non meublée, offrant aux locataires la possibilité d'apporter leurs propres meubles et décorations.