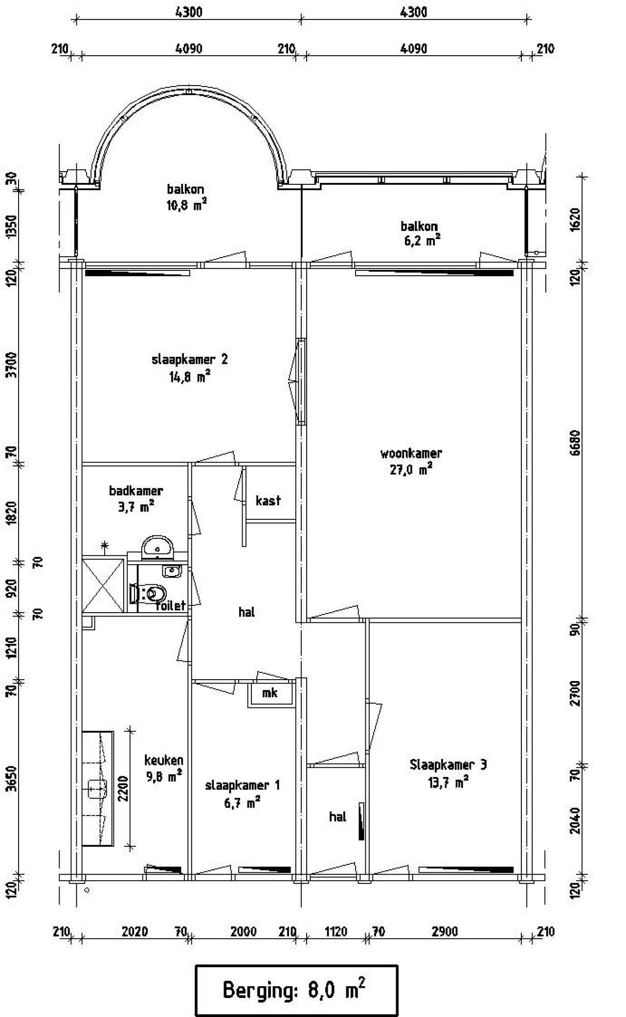
Diese Wohnung befindet sich im dritten Stock eines Gebäudes in der Baljuwstraat in Den Helder. Die Gesamtwohnfläche beträgt 83,7 Quadratmeter und verfügt über 3 Schlafzimmer. Die Wohnung wurde 1971 erbaut. Die Immobilie ist mit modernen Annehmlichkeiten ausgestattet, darunter ein Aufzug und ein Balkon. Die Immobilie gehört zu einem Komplex mit Zentralheizung.
Die Wohnung ist aufgeteilt in ein Wohnzimmer, eine Küche, drei Schlafzimmer und ein Badezimmer. Das Wohnzimmer misst 27 Quadratmeter, während die Schlafzimmer zwischen 6,7 und 14,8 Quadratmeter liegen. Die Küche hat 9,8 Quadratmeter, und das Badezimmer 3,7 Quadratmeter. Die Wohnung verfügt außerdem über einen externen Abstellraum von 8 Quadratmetern.
Die Immobilie ist mit Elektrokochfeldern ausgestattet, und die Nebenkosten beinhalten eine Vorauszahlung für Gas- und Wasserverbrauch. Die Wohnung verfügt über eine Reihe zusätzlicher Annehmlichkeiten, darunter eine Video-Gegensprechanlage, eine freistehende Toilette und eine thermostatische Duscharmatur. Das Gebäude ist mit einem Aufzug ausgestattet, was den Zugang erleichtert.
Die Wohnung ist zu einem Nettomietpreis von € 900,07 pro Monat verfügbar, mit Nebenkosten von € 205,59. Die Bruttomiete beträgt € 1.105,66 pro Monat. Das voraussichtliche Mietdatum ist der 5. Januar 2026.