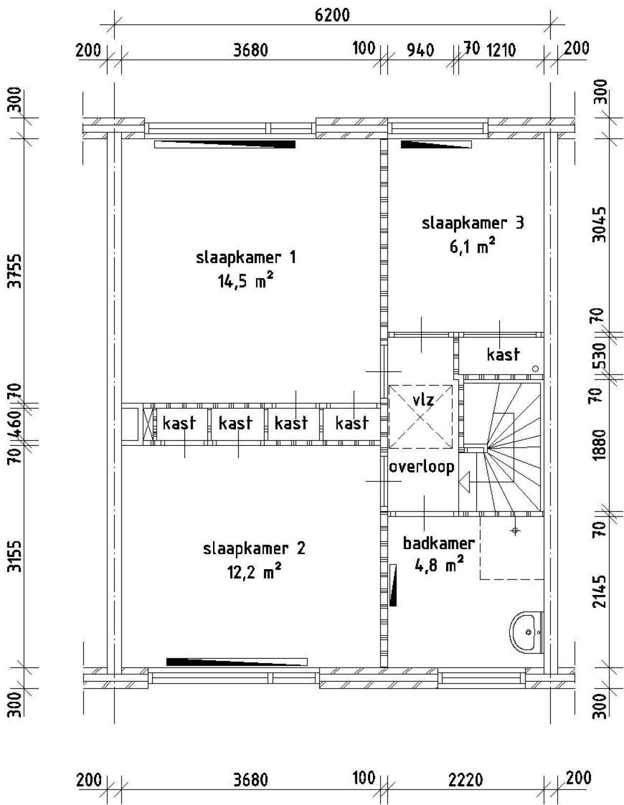
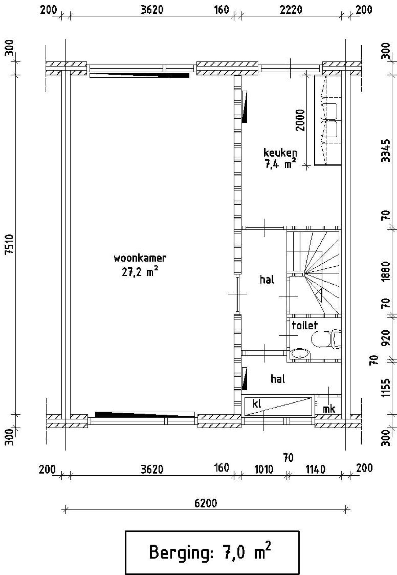
Dieses Einfamilienhaus in der Arie Kieboomstraat 37 in Den Helder steht zur Vermietung. Die Immobilie verfügt über eine Gesamtwohnfläche von 95,1 Quadratmetern und wurde 1967 erbaut. Sie verfügt über drei Schlafzimmer, ein Wohnzimmer, eine Küche, ein Badezimmer und Abstellraum. Das Haus hat einen Garten und einen externen Abstellraum.
Die Immobilie ist mit modernen Annehmlichkeiten ausgestattet, darunter ein Elektroherd, Solarpaneele und eine Zentralheizung. Zusätzliche Ausstattungsmerkmale sind ein thermostatgesteuertes Duscharmatur und eine Dachbodenluke zum Abstellraum. Die Aufteilung umfasst drei Schlafzimmer, ein geräumiges Wohnzimmer, eine Küche, ein Badezimmer und Abstellbereiche.
Die Lage der Immobilie in Den Helder bietet einfachen Zugang zu lokalen Annehmlichkeiten und Dienstleistungen. Die Nachbarschaft zeichnet sich durch ihre Wohngegend aus und bietet eine ruhige Wohnatmosphäre. Das Haus liegt in einer ruhigen Straße und ist somit ein idealer Ort für diejenigen, die eine ruhige Wohnumgebung suchen.
Die Miete beträgt 888,17 € pro Monat, inklusive Nebenkosten. Die Immobilie wird von einer Wohnungsbaugesellschaft verwaltet und ist ab dem 23. Februar 2026 zu vermieten. Interessenten können sich bis zum 21. Dezember 2025 bewerben.