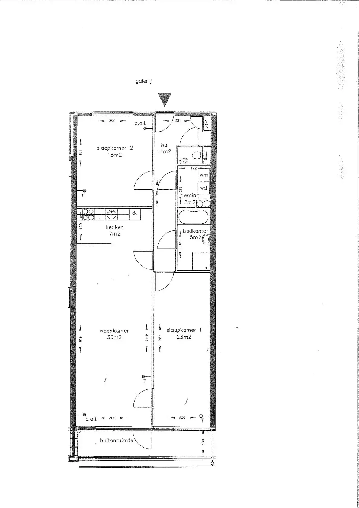
Deze ruime 3-kamerwoning bevindt zich op de eerste verdieping aan de Muurmeesterstraat 8 in Zwolle. Met een totale woonoppervlakte van 103 m2 heeft het een balkon en maakt het deel uit van een complex met een lift en video-intercom. De woning ligt dichtbij een uitgebreid winkelcentrum met diverse voorzieningen, waaronder supermarkten.
De indeling van de woning omvat een hal met meterkast, een toilet en een wasruimte met cv-ketel. De badkamer is uitgerust met een douche, een bad en een wastafel. De luxe keuken beschikt over ingebouwde apparatuur zoals een koelkast-vriezer, vaatwasser, combi-magnetron, gasfornuis en afzuigkap. Twee ruime slaapkamers maken het interieur compleet. De woonkamer heeft toegang tot het op het zuiden gerichte balkon.
Het gebouw is goed onderhouden en biedt extra voorzieningen, waaronder een beveiligde parkeerplaats en bergingsfaciliteiten. De mogelijkheid om een tweede parkeerplaats te huren is beschikbaar. De buurt Stadshagen staat bekend om zijn moderne en groene omgeving, met attracties zoals Twistvlietpark en Milligerplas in de buurt. Het historische stadscentrum van Zwolle is op fietsafstand.
De woning maakt deel uit van het Schoolwoningen-complex, beheerd door MVGM Vastgoedmanagement Midden Noord. Het energielabel van deze woning is B, wat wijst op een goede energiezuinigheid.