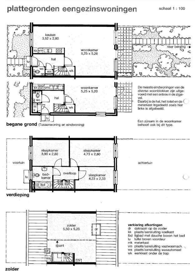
Deze ruime en comfortabele 4-kamer eengezinswoning ligt in de populaire woonwijk Rokkeveen. De woning beschikt over 3 slaapkamers en een grote zolder, met een totale woonkameroppervlakte van 118 m². De woning heeft een voortuin en een achtertuin, met een opslaghut in de achtertuin. De wijk staat bekend om zijn gezinsvriendelijke sfeer, met verkeersremmende maatregelen om een veilige en rustige omgeving te waarborgen.
De woning is goed uitgerust, met een grote open keuken met uitzicht op straat. De badkamer is voorzien van een bad, wastafel en een tweede toilet. De woning is volledig geïsoleerd en heeft een garage of parkeergelegenheid beschikbaar. Het gebied is goed verbonden met openbaar vervoer en hoofdsnelwegen, wat het een ideale locatie maakt voor gezinnen en woon-werkverkeer.
Rokkeveen is een groot en gevarieerd woongebied, gebouwd in de jaren tachtig en negentig. De wijk heeft een dorpsachtig karakter, met eigen voorzieningen, waaronder een winkelcentrum, zorgvoorzieningen en scholen. Inwoners kunnen genieten van recreatieve activiteiten in het nabijgelegen Burgemeester Hoekstrapark en Floriadepark, of een wandeling maken in het prachtige Balijbos.
De woning heeft energielabel A, wat wijst op de energiezuinigheid. De woning wordt beheerd door vb&t Vastgoedmanagement, en geïnteresseerden kunnen contact met hen opnemen voor meer informatie.