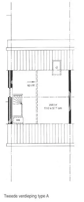
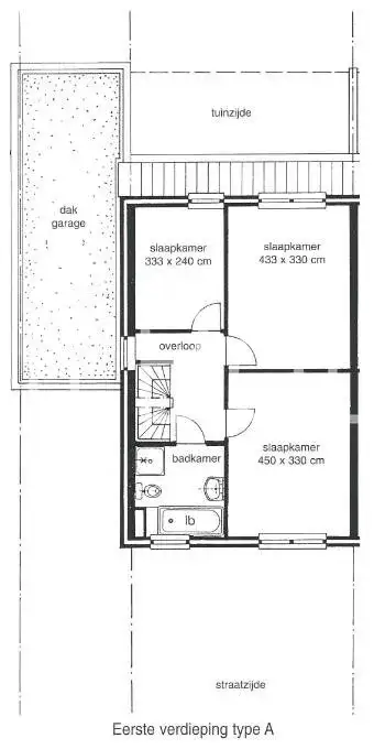
Deze ruime gezinswoning bevindt zich in de charmante wijk Kralingen in Rotterdam. De woning beschikt over een lichte en op de tuin gerichte woonkamer met een halfopen keuken. De eerste verdieping biedt toegang tot drie slaapkamers en een comfortabele badkamer met een bad, aparte douche, wastafel en een tweede toilet. De zolderverdieping, met twee grote dakramen, is geschikt als vierde slaapkamer. Het huis maakt deel uit van het Noordelijk Niertje complex, bekend om zijn monumentale herenhuizen en groene omgeving. De wijk biedt een reeks voorzieningen, waaronder de winkelstraat Lusthof en nabijgelegen parken zoals Trompenburg en Kralingse Bos.
De woning is een ruime eengezinswoning met een oppervlakte van 141 m2, met drie slaapkamers en een zolderverdieping. De open keuken grenst aan de woonkamer. De badkamer is uitgerust met een douchecabine, bad, toilet en wastafel. Daarnaast beschikt de woning over een berging. De buurt is goed verbonden met het stadscentrum via de snelwegen A16 en A20, en het openbaar vervoer is goed beschikbaar.
Noordelijk Niertje is een charmante buurt met haar eigen karakter, gelegen aan de oostelijke rand van Kralingen. Het gebied wordt omgeven door groene ruimtes en biedt een unieke combinatie van natuurlijke schoonheid en stedelijk comfort. De bewoners kunnen genieten van de nabijgelegen Kralingse Bos en Kralingse Plas, evenals de botanische tuin Trompenburg. De buurt is eenvoudig bereikbaar met de auto en het openbaar vervoer, waardoor het een aantrekkelijke keuze is voor wie op zoek is naar een rustige maar toch verbonden leefomgeving.
De woning wordt beheerd door MVGM Vastgoedmanagement Rotterdam, en geïnteresseerden dienen zich aan te melden via de verstrekte contactgegevens. De huurperiode bedraagt minimaal één jaar, met een opzegtermijn van één maand. De woning is beschikbaar vanaf 1 januari 2026.