Deze charmante eengezinswoning is gelegen in de wijk Noordelijk Niertje van Rotterdam. De woning, gebouwd in 1988, biedt 180 vierkante meter woonoppervlak verdeeld over meerdere verdiepingen. De eerste verdieping biedt toegang tot drie slaapkamers en een comfortabele badkamer met een bad, aparte douche, wastafel en een tweede toilet. De zolderverdieping, met twee grote dakramen, is geschikt als vierde slaapkamer.
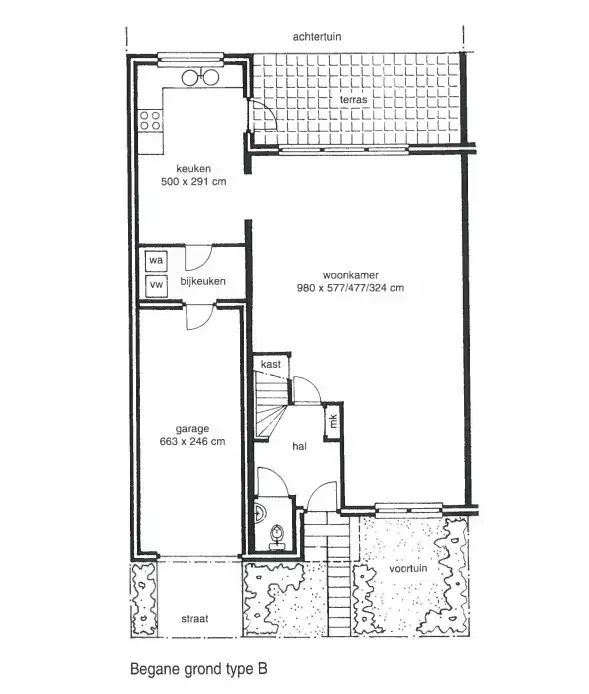
De open keuken is uitgerust met een bijkeuken die aansluitingen heeft voor een wasmachine en vaatwasser. De woning is een rijtjeshuis met een berging aan de voorkant. Alle huizen in de wijk hebben een kleine voortuin en een aangename achtertuin met een terras. Voldoende parkeermogelijkheden zijn in de buurt beschikbaar, waaronder ruime parkeervakken direct voor de woning.
De wijk Noordelijk Niertje staat bekend om haar vele prachtige, monumentale herenhuizen en biedt een gevarieerde winkelervaring aan Winkelstraat Lusthof. Natuurliefhebbers kunnen het nabijgelegen Kralingse Bos, de Trompenburg-botanische tuin en Stadsnatuurpark de Esch bezoeken. Het gebied is goed bereikbaar vanaf de snelwegen A16 en A20 naar het stadscentrum van Rotterdam, evenals met het openbaar vervoer.
De woning heeft energielabel B, wat duidt op de energiezuinigheid. De huurperiode is minimaal 1 jaar, met een opzegtermijn van 1 maand. De woning is te huur voor € 2258 per maand.