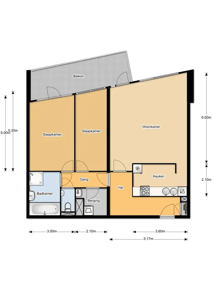
Dit appartement, gelegen aan de Maria Wesselingstraat in Rotterdam, is beschikbaar om te huur. Het beschikt over 3 kamers, waaronder 2 slaapkamers, en heeft een totale woonoppervlakte van 85 m2. Het appartement bevindt zich op de eerste verdieping van het complex en heeft een balkon. De keuken is halfopen en uitgerust met inbouwapparatuur zoals een afzuigkap, kookplaat en combi-magnetron. De badkamer is voorzien van een bad, wastafel en douche.
Het appartement maakt deel uit van het Prinsenland II-complex, dat bekend staat om zijn aangename omgeving. Het winkelcentrum Prinsenland ligt op slechts 2 minuten loopafstand, en het Kralingse Bos ligt binnen 5 minuten bereik. De A16-snelweg en metro-/bus stops zijn ook in de buurt, wat het een handige locatie maakt.
Het appartementengebouw biedt diverse voorzieningen, waaronder opslagfaciliteiten. De buurt Prinsenland is een populaire woonwijk met zijn eigen winkelcentrum, sportverenigingen en veel groenvoorzieningen en water. Het Kralingse Plas en het Kralingse Bos zijn ideaal voor buitenactiviteiten zoals hardlopen, fietsen en wandelen.
Het appartement heeft energielabel A, wat wijst op zijn energie-efficiëntie. Het gebouw is gebouwd in 1990. De huur bedraagt € 1431 per maand, met bijkomende servicekosten van € 65. De servicekosten dekken diverse diensten die door de verhuurder worden geleverd, waaronder onderhoud van gemeenschappelijke ruimtes en nutsvoorzieningen.