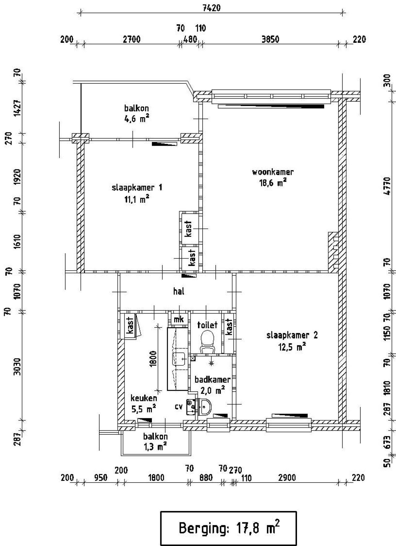
Dit appartement is gelegen aan Willem Barentszstraat 128, Den Helder. Het is een appartement met 2 slaapkamers op de 2e verdieping, gebouwd in 1953, met een totale woonoppervlakte van 67,5 vierkante meter. Het appartement beschikt over 2 ruime slaapkamers, een woonkamer, een keuken en een badkamer. De indeling omvat een opslagruimte van 17,80 vierkante meter.
Het appartement is voorzien van moderne voorzieningen zoals elektrisch koken, een centrale verwarmingsketel, een intercom, een vrijstaand toilet en een thermostatische douchekraan. Daarnaast beschikt het over een balkon en externe berging.
De woning is goed onderhouden en biedt een comfortabele leefruimte. De buurt ligt gunstig en biedt gemakkelijke toegang tot lokale voorzieningen. De exacte locatie kan worden bekeken op Google Maps of Google Street View voor een beter beeld van de omgeving.
Het appartement is beschikbaar voor verhuur met een netto maandhuur van € 580,64, plus servicekosten van € 15,09, wat de totale maandelijkse kosten op € 595,73 brengt. De verwachte opleveringsdatum is 19 januari 2026. Potentiële huurders dienen als onderdeel van het huur-aanvraagproces een inkomstenverklaring van de Belastingdienst te overleggen.