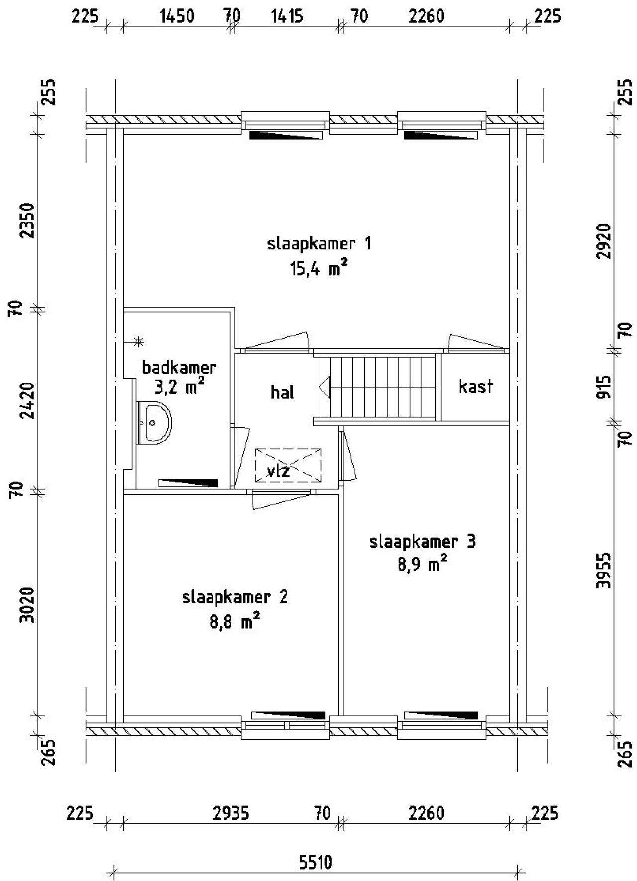
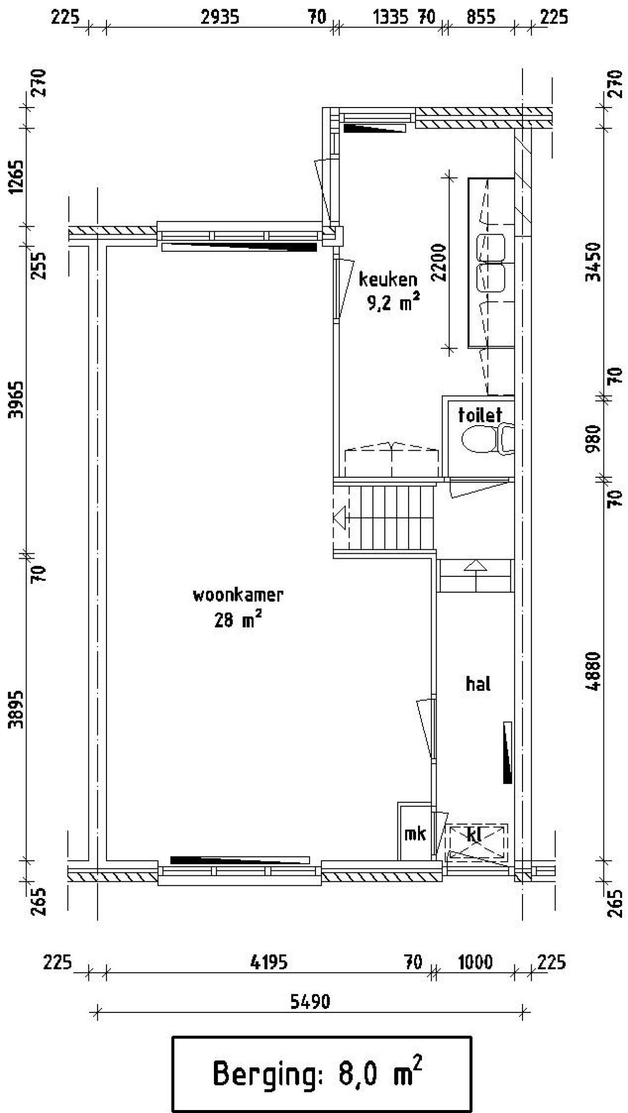
Deze eengezinswoning, gelegen aan Jacob Beenstraat 35 in Den Helder, is te huur. De woning heeft een totale woonoppervlakte van 93,2 vierkante meter en werd gebouwd in 1950. Hij beschikt over drie slaapkamers, een woonkamer, keuken, badkamer en extra opslagruimtes, waaronder een externe opslagruimte en een zolder die bereikbaar is via een vlizotrap.
De woning is goed uitgerust met diverse voorzieningen, waaronder zonnepanelen, elektrische kookfaciliteiten en een condensatieketel voor verwarming. De aanwezigheid van zonnepanelen is vooral opmerkelijk, omdat dit wijst op een bepaald niveau van energie-efficiëntie en mogelijke kostenbesparingen.
De externe opslagruimte biedt extra opslagruimte voor bewoners, wat handig kan zijn voor het opbergen van bijvoorbeeld fietsen of andere buitenapparatuur.
De buurt en de omliggende omgeving bieden een prettige leefomgeving, waarbij de woning in een gevestigde woonwijk ligt.
De tuin is een aantrekkelijk kenmerk, biedt buitenruimte voor ontspanning of recreatie.
De details van de tuin, zoals de grootte of specifieke kenmerken, worden niet gespecificeerd, maar dragen bij aan de algehele aantrekkingskracht van de woning.
Al met al biedt deze eengezinswoning een solide optie voor wie op zoek is naar een ruime en relatief goed uitgeruste woning in Den Helder. De combinatie van grootte, voorzieningen en locatie maakt het de moeite waard om te overwegen door potentiële huurders die op zoek zijn naar een comfortabele en praktische woonsituatie.