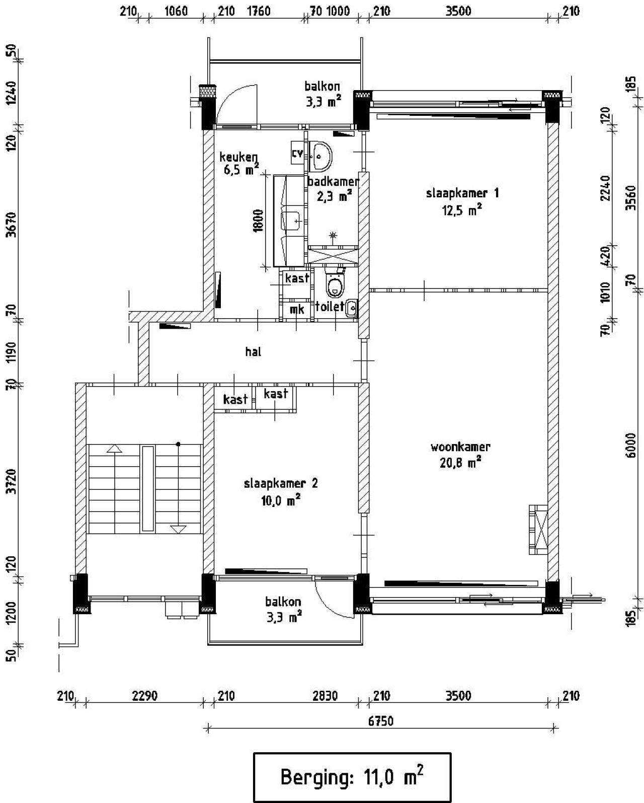
This first-floor apartment is located at Waddenzeestraat 204 in Den Helder. The property has a total living area of 63.1 square meters and was built in 1958. It features two bedrooms, a living room, a kitchen, and a bathroom. The apartment also includes a balcony and external storage.
The apartment is well-appointed with modern amenities, including electric cooking and a condensing boiler for heating. Additional features include a video door phone and a thermostatic shower mixer. The property is managed by a housing corporation and is available for rent.
The layout of the apartment is as follows: two bedrooms measuring 12.50 and 10.00 square meters, a living room of 20.80 square meters, a kitchen of 6.50 square meters, and a bathroom of 2.30 square meters. There is also external storage space of 11.00 square meters.
The rent for the apartment is €683.01 per month, which includes service costs of €30.24. The property is subject to certain rules and regulations, and prospective tenants are required to agree to the established living rules. Income verification is also required as part of the rental application process.