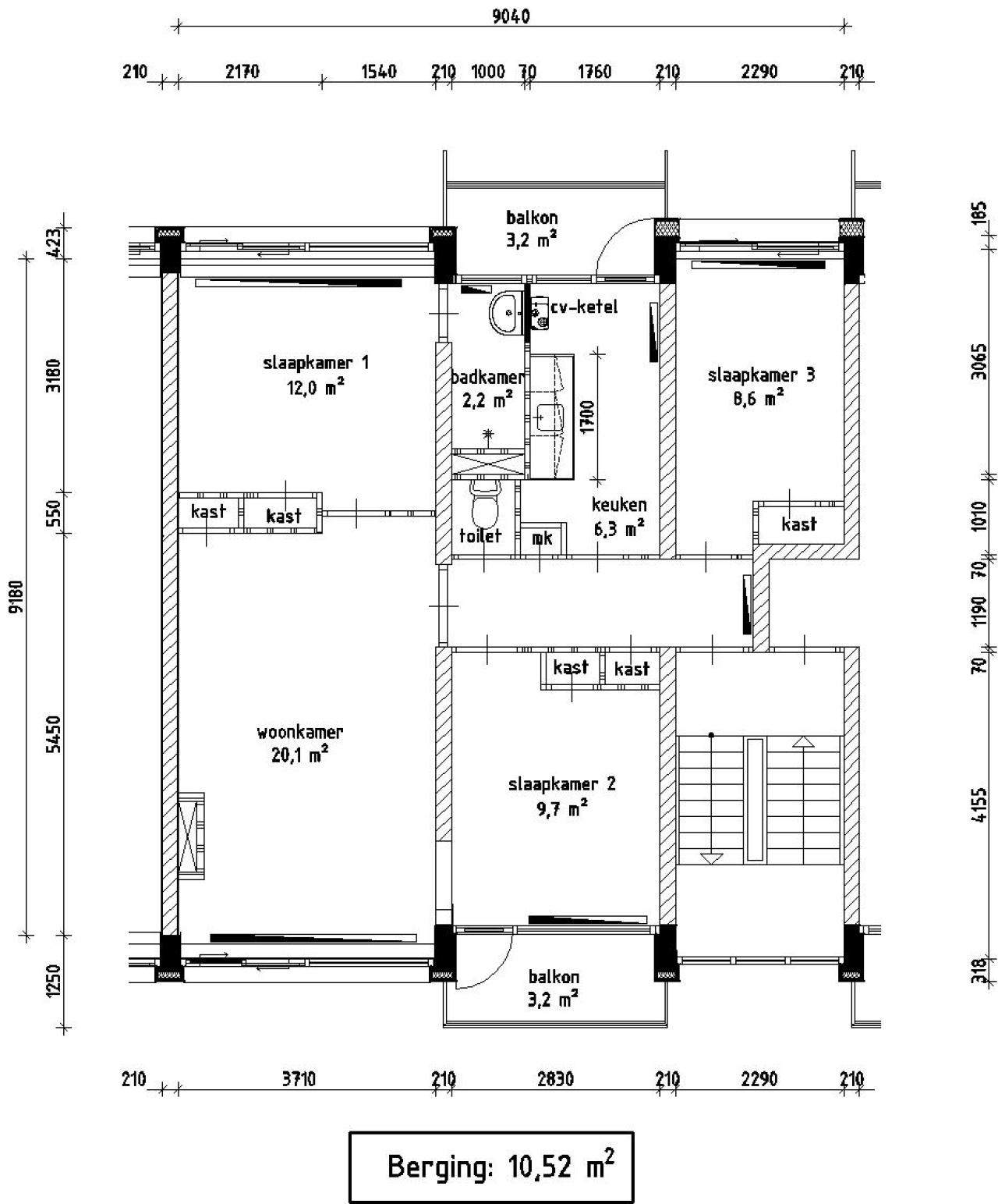
This first-floor apartment is located at Waddenzeestraat 158 in Den Helder. The property has a total living area of 69.42 square meters and features three bedrooms, a living room, a kitchen, and a bathroom. The apartment is built in 1958 and offers a balcony and external storage.
The apartment is well-equipped with modern amenities, including electric cooking, solar panels, and a CV combi boiler. Additional features include a video door phone and thermostatic shower faucet. The property is managed by a corporation and is available for rent.
The layout of the apartment includes three bedrooms with sizes ranging from 8.60 to 12.00 square meters, a living room of 20.10 square meters, a kitchen of 6.30 square meters, and a bathroom of 2.20 square meters. The external storage has an area of 10.52 square meters.
The property is subject to certain rules and regulations, including living rules that tenants must agree to upon allocation. Potential tenants may be eligible for a temporary discount on the rent if they meet certain income criteria and are between 18 and 22 years old.