Deze aantrekkelijke eengezinswoning is gelegen aan de Vechtstraat 9 in Den Helder. De woning beschikt over drie ruime slaapkamers en heeft een totale woonoppervlakte van 63,2 vierkante meter. Gebouwd in 1958, beschikt de woning over een tuin, externe berging en een open keukenindeling.
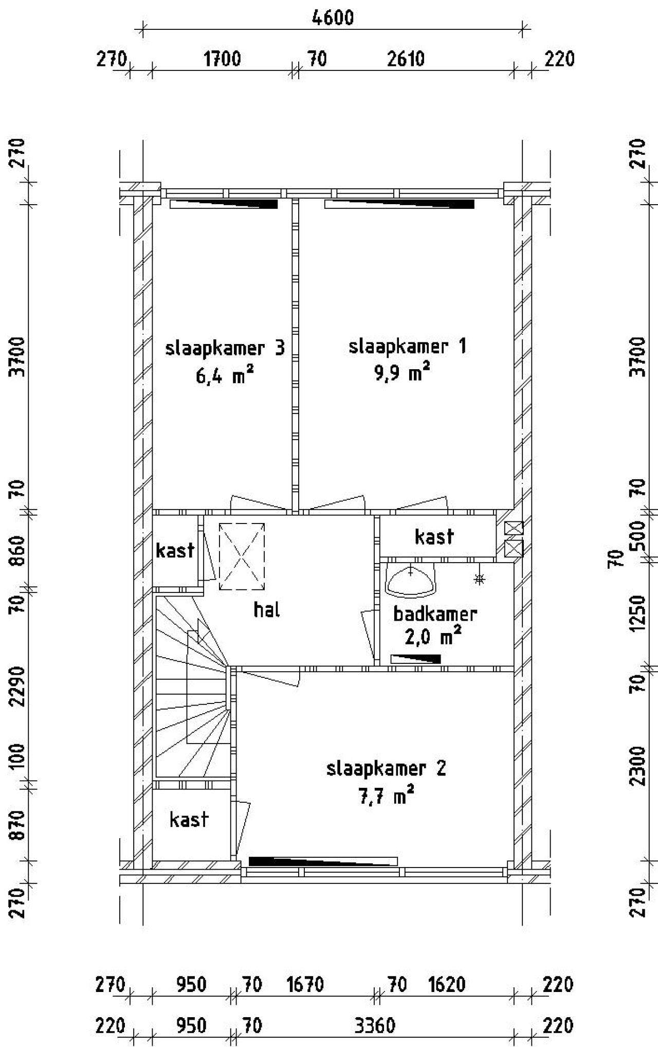
De woning is goed uitgerust met moderne voorzieningen, waaronder elektrisch koken, zonnepanelen en een centrale verwarmingsketel. Extra kenmerken zijn onder meer een thermostaatkraan voor de douche, wat het comfort van de woning verhoogt. De indeling bestaat uit drie slaapkamers, een woonkamer, keuken, badkamer en bergruimtes, wat zorgt voor voldoende ruimte voor de bewoners.
De woning is gelegen op een gewilde locatie in Den Helder, met gemakkelijke toegang tot lokale voorzieningen. De buurt biedt een prettige woonomgeving, waarbij de tuin van de woning bijdraagt aan de charme. De externe berging is een extra gemak voor de bewoners.
De huurprijs voor deze woning bedraagt € 748,69 per maand, inclusief servicekosten. De woning is beschikbaar voor verhuur vanaf 16 maart 2026, en belangstellenden kunnen zich aanmelden tot 21 januari 2026.