Deze charmante eengezinswoning is gelegen aan de Zijlstraat 4 in Den Helder. De woning heeft een totale woonoppervlakte van 82,1 vierkante meter en beschikt over drie slaapkamers, een woonkamer, keuken, badkamer en externe berging. De woning werd gebouwd in 1958. De woning is voorzien van moderne gemakt zoals elektrisch koken, zonnepanelen en een combiketel voor de verwarming. De woning beschikt ook over een balkon en een tuin, die buitenruimte bieden voor ontspanning.
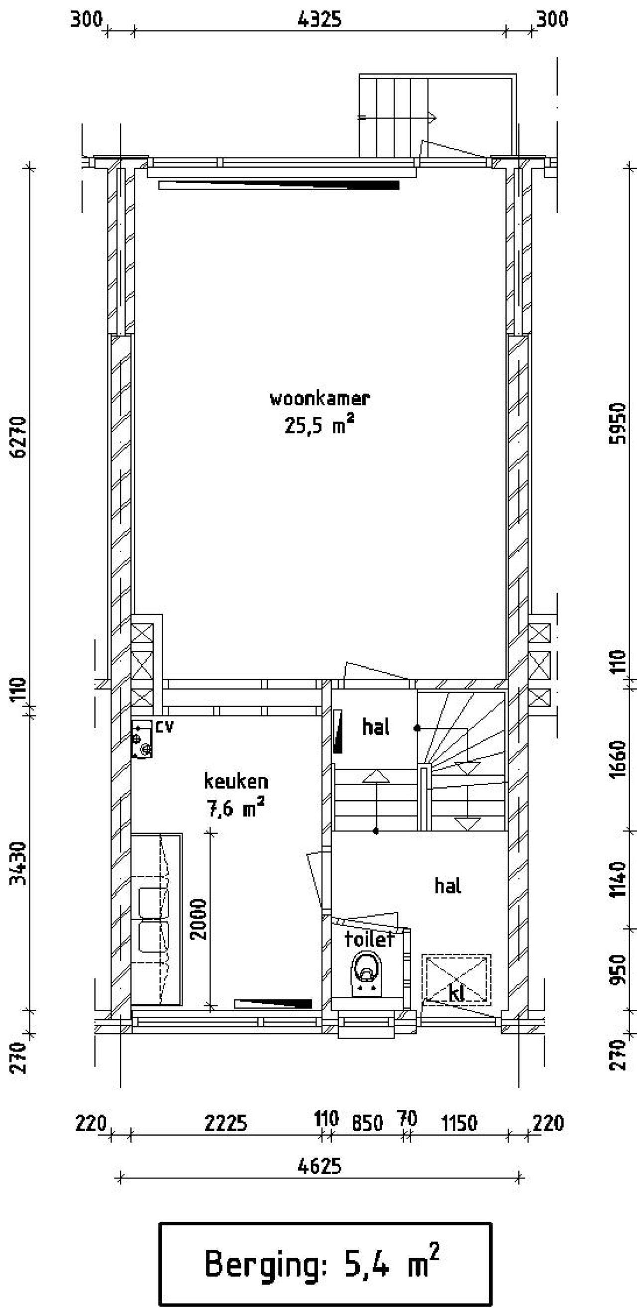
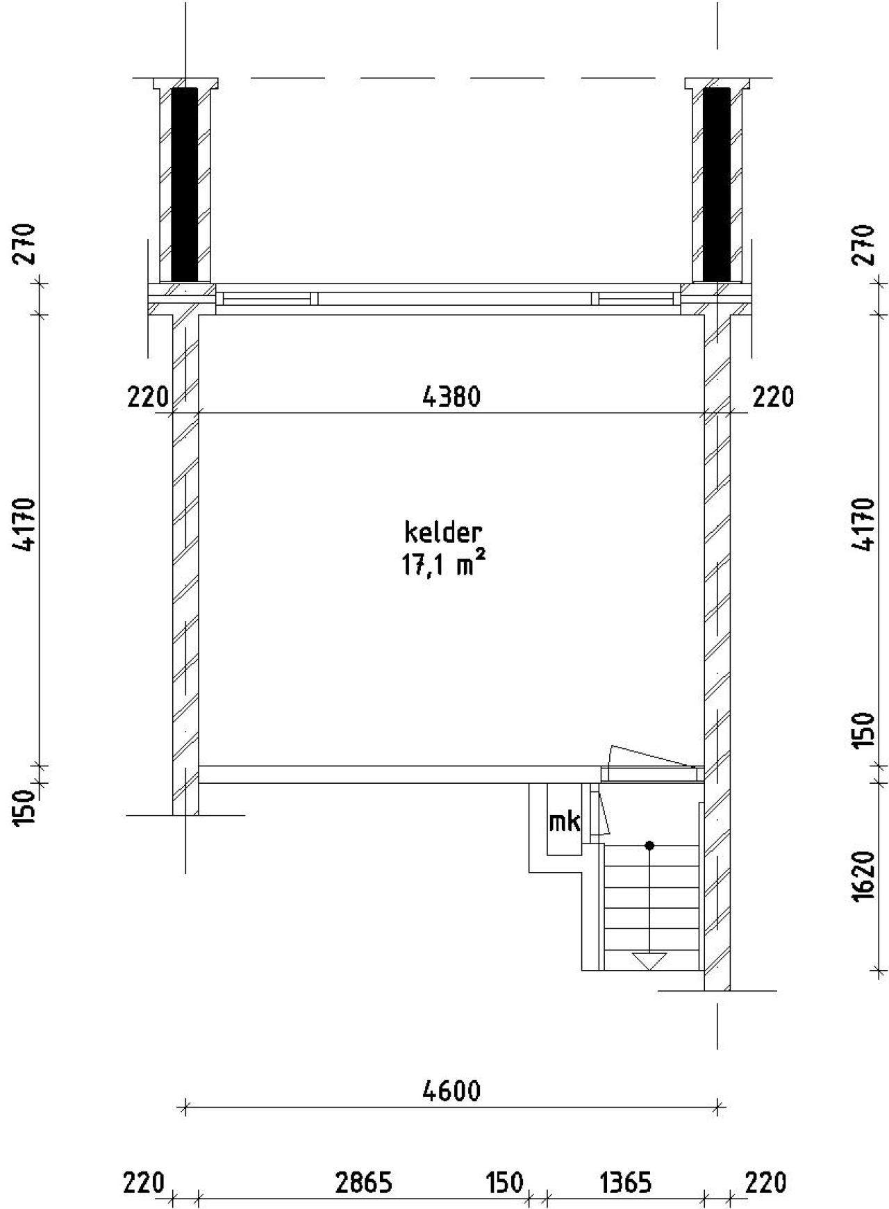
Het interieurindeling omvat drie slaapkamers met afmetingen variërend van 5,8 tot 10,8 vierkante meter, een ruime woonkamer van 25,5 vierkante meter en een keuken van 7,6 vierkante meter. De woning heeft ook een kelder van 17,1 vierkante meter en een opslagruimte van 5,4 vierkante meter. De badkamer is uitgerust met een thermostatisch regelbare doucheset en een aparte WC.
De woning is goed uitgerust met verschillende voorzieningen, waaronder elektrisch koken, zonnepanelen en een combiketel. De externe berging biedt extra ruimte voor bewoners. De buurt kenmerkt zich door haar woonwijk-karakter, met nabijheid van lokale voorzieningen.
Al met al biedt deze eengezinswoning een comfortabele leefomgeving met zijn ruimtelijke indeling, moderne voorzieningen en buitenruimtes. Het is een ideale huurkans voor wie op zoek is naar een goed uitgeruste woning in Den Helder.