Dit ruime 4-kamer appartement bevindt zich op Java Eiland in het gebied Binnentuinen van Amsterdam. Het appartement maakt deel uit van een uniek wooncomplex met opvallende architectuur. Het Binnentuinen-complex biedt een rustige leefomgeving, maar ligt op fietsafstand van het stadscentrum van Amsterdam en Station Centraal. De A10-snelweg is eenvoudig bereikbaar via de Piet Heintunnel.
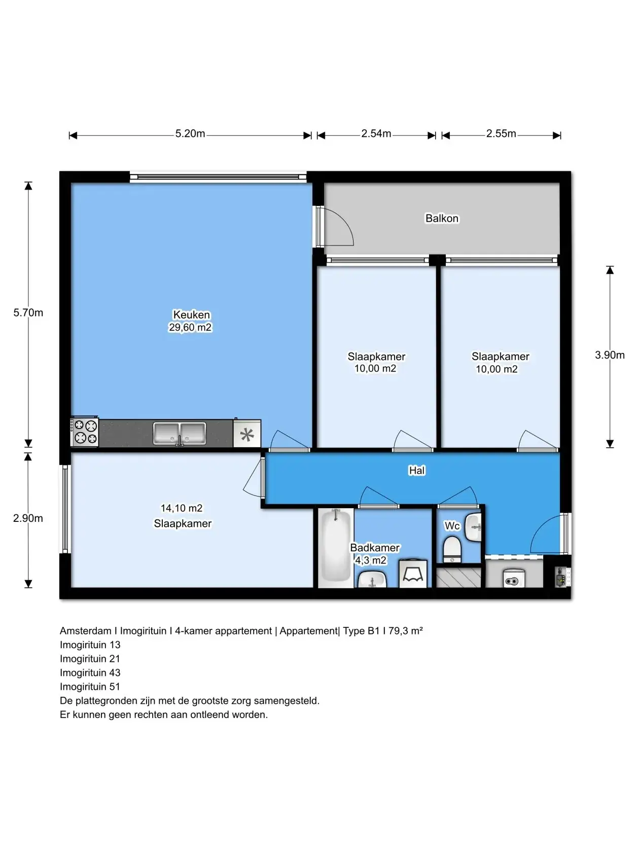
Het appartement beschikt over een open keuken met inbouwapparatuur en toegang tot een balkon met oostelijke oriëntatie. De badkamer is uitgerust met een bad, wastafel en een apart toilet. Het appartement heeft ook een ruime woonkamer en extra kamers. Het complex biedt een scala aan voorzieningen, waaronder een veilige en kindvriendelijke omgeving.
Java Eiland is een populaire woonwijk die bekend staat om zijn diverse architectuurstijlen en centrale ligging. De omgeving ligt nabij verschillende voorzieningen, waaronder het winkelcentrum Brazilië, basisscholen, kinderopvang en een medisch centrum. Het stadscentrum en Station Centraal zijn gemakkelijk bereikbaar per fiets of openbaar vervoer.
Het appartement wordt opgeleverd met een hoge afwerkingsstandaard, inclusief energielabel A. Het complex is goed onderhouden en de appartementen zijn ontworpen om een comfortabele leefomgeving te bieden. De omgeving kenmerkt zich door zijn unieke stedenbouw en architectuur, waardoor het een aantrekkelijke plek om te wonen.