Diese komplette und gut ausgestattete 3-Zimmer-Wohnung befindet sich in Waalre und bietet eine komfortable Wohnfläche von 82 m². Die Wohnung verfügt über einen PVC-Boden, Vorhänge und Beleuchtung, mit frisch gestrichenen Wänden, die einen sofortigen Einzug ermöglichen. Sie ist voll möbliert und erfordert keine zusätzlichen Arbeiten vom Mieter.
Die Wohnung umfasst zwei reservierte Parkplätze, die jeweils für eine Mietgebühr von 155 € pro Monat verfügbar sind. Die Möbel verursachen zusätzliche Kosten von 65 € pro Monat, während die Nebenkosten 50 € pro Monat betragen. Die Lage ist vorteilhaft, nur 10 Minuten vom Zentrum von Eindhoven entfernt und in Fahrradnähe zu ASML und dem High Tech Campus. Nahegelegene Annehmlichkeiten wie Supermärkte, Restaurants und Geschäfte sind zu Fuß erreichbar, was den Alltag erleichtert.
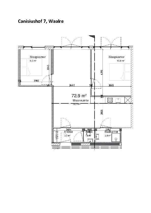
Die Wohnung befindet sich im Erdgeschoss und die Aufteilung umfasst einen Flur mit einer separaten Toilette. Vom Flur aus haben die Bewohner Zugang zu einem geräumigen und hellen Wohnzimmer. Die moderne offene Küche ist mit den notwendigen Geräten ausgestattet, darunter ein Kühlschrank-Gefrierkombination, ein Kombi-Backofen/Mikrowelle, eine Dunstabzugshaube, ein Elektroherd und ausreichend Stauraum. Die Wohnung verfügt über zwei geräumige Schlafzimmer und ein modernes Badezimmer mit einer begehbaren Dusche und einem Waschbecken.
Die Wohnung wird möbliert übergeben, ausgestattet mit einem modernen PVC-Boden, Einbauleuchten und Rollos. Sie ist ab dem 15-03-2025 zur Miete verfügbar, mit einer Mindestmietdauer von 12 Monaten. Die erforderliche Kaution beträgt zwei Monatsmieten, und Haustiere sind nicht erlaubt. Zu den zusätzlichen Merkmalen gehören ein gemeinsamer Fahrradabstellraum, und die Immobilie befindet sich in einem Wohngebiet mit guter Anbindung an den öffentlichen Nahverkehr.