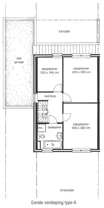
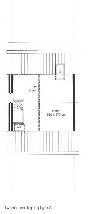
Dieses geräumige Einfamilienhaus befindet sich in der Goosse van der Windstraat 11 in Rotterdam. Die Immobilie bietet 4 Zimmer, darunter 3 Schlafzimmer, und eine Wohnfläche von 141 m2. Die Wohnung verfügt über einen nach Osten ausgerichteten Garten. Die Küche ist halboffen und mit Einbaugeräten wie Geschirrspüler, Kühlschrank, Dunstabzugshaube, Induktionskochfeld und einer Kombi-Mikrowelle ausgestattet. Das Badezimmer ist mit einer Badewanne, einem Waschbecken, einer Dusche und einer zweiten Toilette gut ausgestattet. Das Dachgeschoss mit zwei großen Dachfenstern eignet sich als viertes Schlafzimmer. Die Immobilie gehört zum Viertel Noordelijk Niertje, bekannt für seinen charmanten Charakter und seine großzügigen Grünflächen. Das Viertel ist über die nahegelegenen Autobahnen A16 und A20 gut an das Stadtzentrum angebunden, was eine Fahrzeit von 15 Minuten bedeutet. Das Viertel wird auch durch verschiedene öffentliche Verkehrsmittel bedient. Der Kralingse Bos, die Kralingse Plas und der Stadsnatuurpark de Esch sind nahegelegene Attraktionen für Naturliebhaber. Die Immobilie hat ein Energielabel B, was auf eine gute Energieeffizienz hinweist. Das Gebäude wurde 1988 erbaut. Die Miete beträgt 2005 € pro Monat. Die Mietdauer beträgt mindestens 1 Jahr mit einer Kündigungsfrist von 1 Monat. Es ist keine Kaution erforderlich, obwohl in einigen Fällen eine Kaution von 2 Monatsmieten verlangt werden kann. Der WOZ-Wert der Immobilie beträgt 860.000 €. Die Immobilie wird von MVGM Vastgoedmanagement Rotterdam verwaltet. Die Immobilie ist ab dem 29. Dezember 2025 verfügbar.
Das Viertel Noordelijk Niertje bietet eine einzigartige Wohnatmosphäre mit viel Grün und einem ausgeprägten Charakter. Die Bewohner können in der Einkaufsstraße Winkelstraat Lusthof einkaufen, die eine Reihe von täglichen Notwendigkeiten bietet. Die Umgebung ist von natürlichen Attraktionen umgeben, darunter der Kralingse Bos und die Kralingse Plas sowie der botanische Garten Trompenburg und der Stadsnatuurpark de Esch. Das Viertel ist über die Autobahnen A16 und A20 gut mit dem Auto erreichbar. Öffentliche Verkehrsmittel sind ebenfalls gut verfügbar, mit mehreren Bus-, Straßenbahn- und Metrolinien, die eine Verbindung zum Stadtzentrum von Rotterdam bieten.
Die Aufteilung und Ausstattung der Immobilie machen sie zu einer attraktiven Option für diejenigen, die eine geräumige und komfortable Wohnumgebung suchen. Die halboffene Küche und das gut ausgestattete Badezimmer sind bemerkenswerte Merkmale. Die Lage der Immobilie in Noordelijk Niertje bietet eine ruhige Wohnatmosphäre, während sie dennoch gut an das Stadtzentrum angebunden ist. Die natürliche Schönheit und die Freizeitmöglichkeiten der Gegend machen sie zu einer idealen Wahl für Naturliebhaber.
Insgesamt bietet diese Immobilie eine gute Balance zwischen Platz, Komfort und Lage. Der Charme des Viertels und die Ausstattung der Immobilie machen sie zu einer begehrten Wahl für potenzielle Mieter. Die Energieeffizienz und der gut gepflegte Zustand der Immobilie sind weitere Vorteile. Mit ihrer großzügigen Aufteilung und der angenehmen Umgebung wird diese Immobilie sicherlich diejenigen ansprechen, die eine komfortable und praktische Wohnlösung suchen.