Diese Wohnung befindet sich in der Admiraliteitskade 182 in Rotterdam. Die Immobilie ist eine Wohnung mit 2 Schlafzimmern und hat eine Wohnfläche von 87 Quadratmetern. Sie liegt im 6. Stock eines Gebäudes, das 1994 erbaut wurde. Die Miete beträgt 1650 € pro Monat, zuzüglich 55 € Nebenkosten pro Monat. Eine Kaution von 1 oder 2 Monaten ist erforderlich.
Die Wohnung verfügt über eine offene Küchenlayout, das eine gesellige Atmosphäre beim Kochen ermöglicht. Das Wohnzimmer bietet direkten Zugang zu einem Balkon, auf dem man die Natur und den Blick genießen kann. Die Lage ist ideal, da Supermärkte, Speiseoptionen und öffentliche Verkehrsmittel zu Fuß erreichbar sind. Das Zentrum von Rotterdam und das lebhafte Admiraliteitskade-Gebiet sind ebenfalls gut zu Fuß erreichbar. Die Nachbarschaft ist bekannt für ihre gemütliche Atmosphäre und die malerische Lage am Wasser.
Der Wohnkomplex, gelegen an der Oostmolenwerf, erstreckt sich über 16 Etagen und bietet verschiedene Arten von Wohnungen. Das Gebäude verfügt über ein sicheres Zugangssystem, und die Wohnungen sind barrierefrei per Aufzug erreichbar. Parkmöglichkeiten befinden sich in der Tiefgarage, und es gibt auch reservierte Parkplätze außerhalb des Gebäudes zur Miete. Die Wohnungen sind gut isoliert und mit Fernwärme ausgestattet. Der Komplex verfügt außerdem über Lagerflächen in jeder Etage und einen Fahrradabstellbereich auf der Entresol-Ebene.
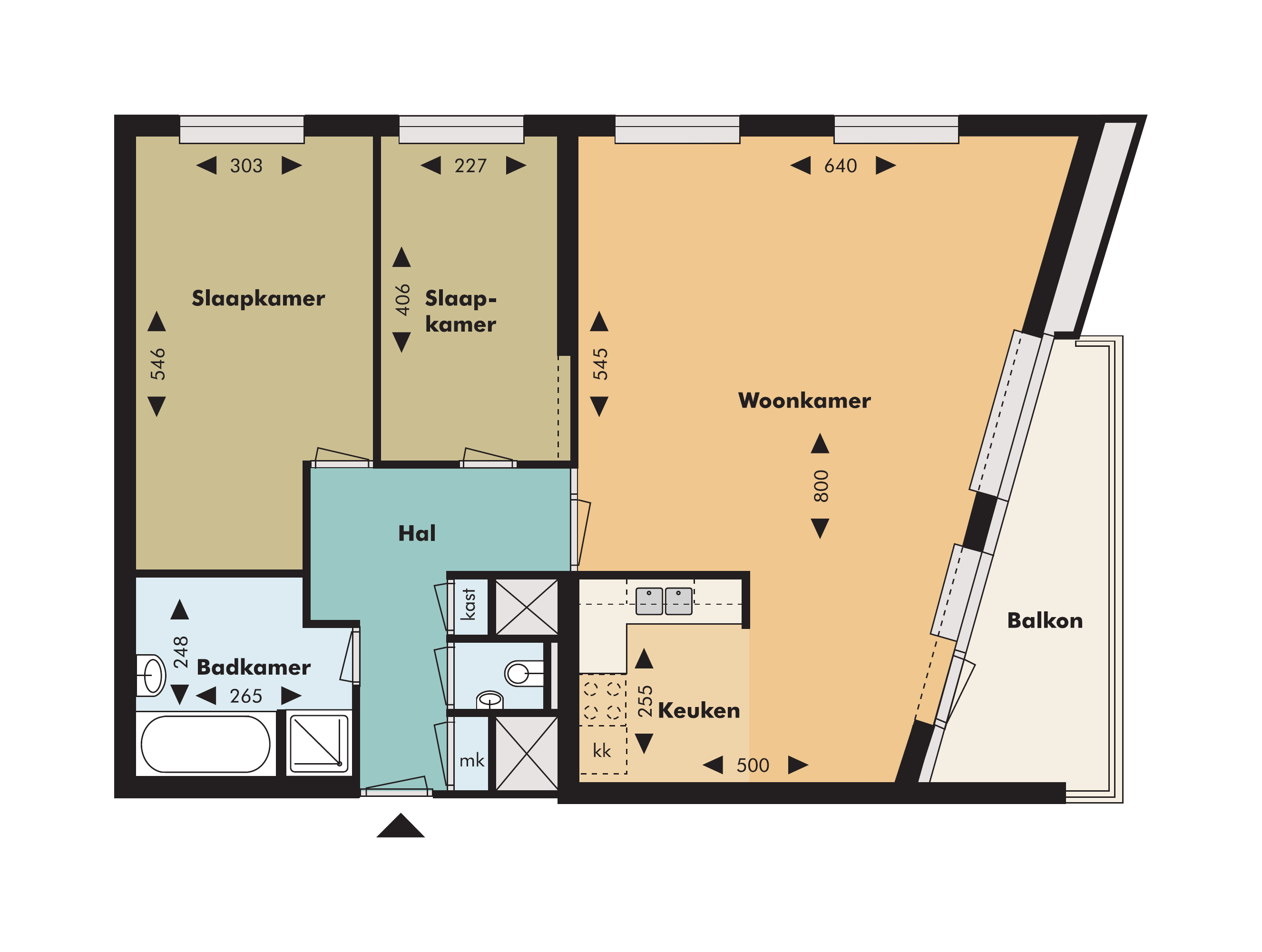
Die beschriebene spezielle Wohnungstyp hat zwei Schlafzimmer, ein geräumiges Wohnzimmer und eine Küche in Ecke-Layout. Sie verfügt außerdem über ein modernes Badezimmer mit Badewanne, separater Dusche und Waschbecken. Die Wohnung hat einen Balkon, der von der Küche aus zugänglich ist. Der Komplex bietet verschiedene Annehmlichkeiten, darunter ein sicherer Zugang, Aufzugzugang und Parkmöglichkeiten.