Dieses unmöblierte 2-Zimmer-Apartment befindet sich im Erdgeschoss des Wohnkomplexes 'De Ruyter' in Leiden. Das Apartment verfügt über eine luxuriöse Küche, ein Badezimmer und einen kleinen Garten. Der Komplex liegt in der Nähe des Stadtzentrums, das pulsierende Herz von Leiden ist weniger als fünf Autominuten entfernt. Das Apartment ist Teil eines Neubaukomplexes mit 46 Mietwohnungen.
Das Apartment hat eine Wohnfläche von 50 m² und ist auf Nachhaltigkeit ausgelegt, mit einem Energielabel A+++ dank Solarpaneelen und einer Wärmepumpe. Die Häuser im Komplex sind gut isoliert, was für niedrige Energiekosten sorgt. Das Apartment verfügt über Fußbodenheizung, isolierendes HR++-Glas und ist mit einem Geschirrspüler, Induktionskochfeld, Kombi-Mikrowelle und Kühlschrank ausgestattet.
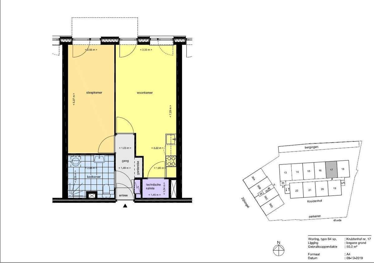
Der Komplex ist in zwei Gebäude unterteilt, das Apartment befindet sich in Gebäude B. Der Eingang befindet sich im Erdgeschoss, ein Flur führt zu den verschiedenen Räumen. Das Wohnzimmer verfügt über eine luxuriöse offene Küche, und das Badezimmer ist mit einer Dusche, einem Waschbecken, einer Toilette und einem Waschmaschinenanschluss ausgestattet. Das Schlafzimmer ist vom Flur aus zugänglich.
Die Miete beträgt 1.695 € pro Monat, zuzüglich Strom, Wasser und TV/Internet. Zusätzliche Kosten beinhalten 78 € pro Monat für Nebenkosten und 95,57 € für einen Vertrag mit InWarmte. Das Apartment ist ab dem 1. Februar 2026 zu vermieten, mit einer unbegrenzten Mietdauer und einer Kaution von 1.695 €.