Diese Seniorenwohnung befindet sich in der Sportlaan 98 in Den Helder. Die Wohnung hat eine Gesamtwohnfläche von 63,1 Quadratmetern und wurde 1995 erbaut. Sie verfügt über zwei Schlafzimmer, ein Wohnzimmer, eine Küche und ein Badezimmer. Die Wohnung ist gut ausgestattet mit Elektroherd, Solaranlagen und einer Kombitherme.
Die Wohnung ist für Senioren konzipiert, mit einem Mindestalter von 65 Jahren. Sie verfügt über einen großen Garten und einen externen Abstellraum. Die Wohnung ist mit modernen Annehmlichkeiten ausgestattet, darunter ein Thermostat-Duscharmatur.
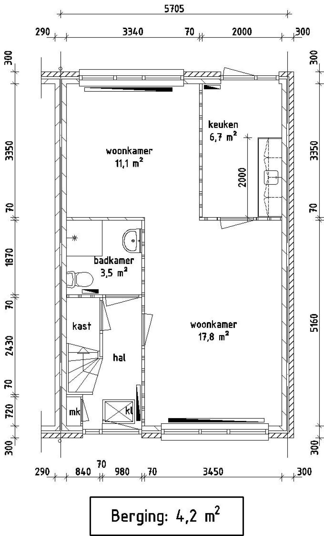
Die Aufteilung der Wohnung ist wie folgt: zwei Schlafzimmer von jeweils 9,90 Quadratmetern, ein Wohnzimmer von 28,90 Quadratmetern, eine Küche von 6,70 Quadratmetern, ein Badezimmer von 3,50 Quadratmetern und ein Abstellraum von 4,20 Quadratmetern. Die Miete beträgt 838,67 € pro Monat, zzgl. Nebenkosten von 17,31 €.
Die Wohnung wird von einer Wohnungsbaugesellschaft verwaltet und ist ab dem 2. März 2026 zu vermieten. Das Bewerbungsverfahren erfordert eine Einkommensbescheinigung des Finanzamtes.