Diese Erdgeschosswohnung befindet sich in der Schoenerstraat 296 in Den Helder. Die Wohnung verfügt über 2 Schlafzimmer und eine Gesamtwohnfläche von 61,8 Quadratmetern. Baujahr 1963, bietet sie einen komfortablen Wohnraum mit verschiedenen Annehmlichkeiten. Die Immobilie wird vorzugsweise an Kandidaten ab 65 Jahren vermietet, jüngere Kandidaten können sich jedoch ebenfalls bewerben und werden auf eine Warteliste gesetzt.
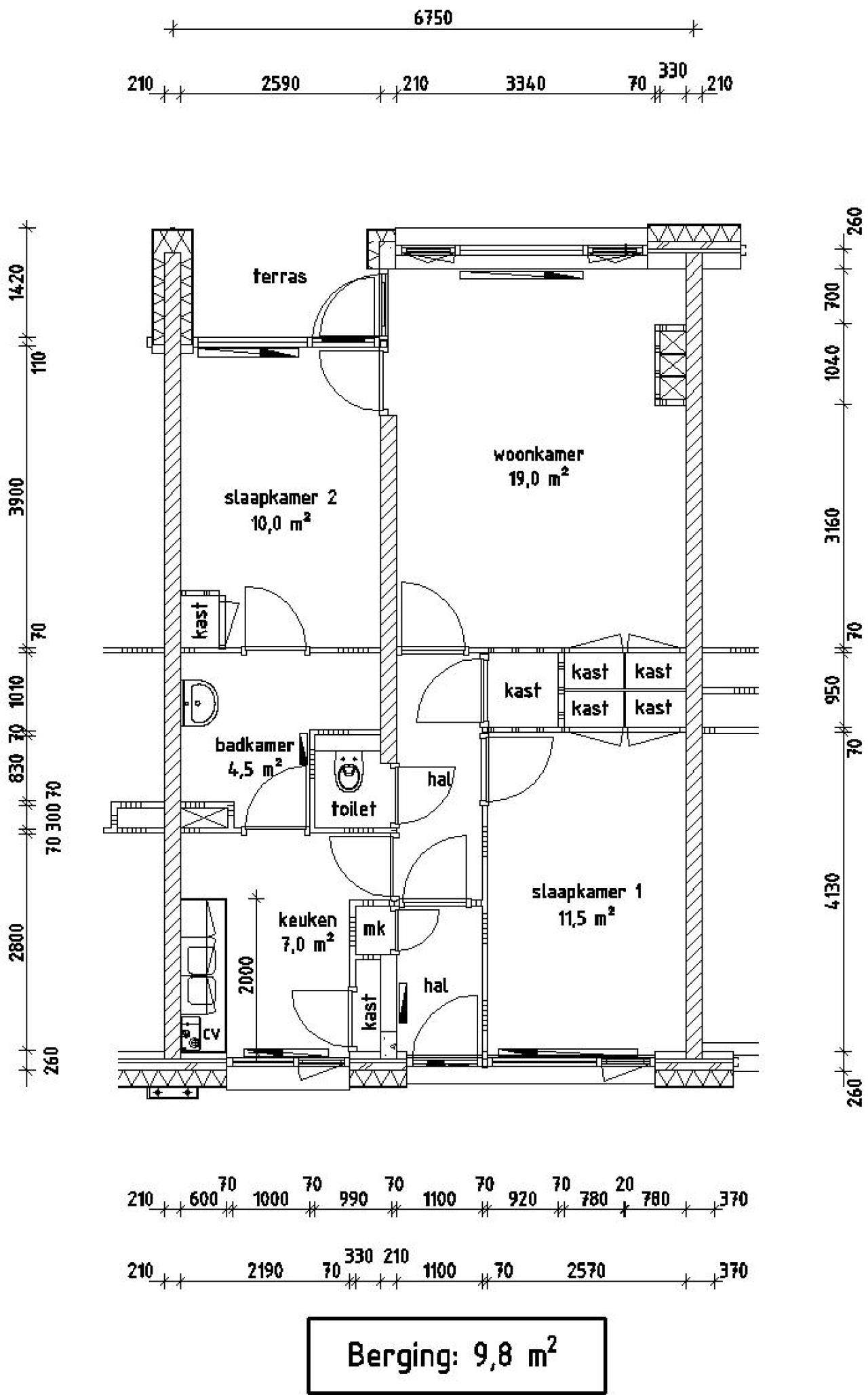
Die Wohnung ist gut ausgestattet mit modernen Einrichtungen, darunter Elektroherd, eine Kombitherme und ein Thermostat-Duscharmatur. Sie verfügt außerdem über einen Garten und einen externen Abstellraum. Die Innenaufteilung umfasst zwei Schlafzimmer von 11,50 m2 und 10,00 m2, ein Wohnzimmer von 19,00 m2, eine Küche von 7,00 m2 und ein Badezimmer von 4,50 m2. Zusätzliche Merkmale sind eine freistehende Toilette und eine zusätzliche Toilette im Badezimmer.
Die Mietdetails beinhalten eine Nettokaltmiete von 719,52 €, Nebenkosten von 14,29 €, was eine monatliche Gesamtmiete von 733,81 € ergibt. Die Immobilie wird von einer Wohnungsgesellschaft verwaltet und ist ab dem 2. Februar 2026 zu vermieten. Interessierte Bewerber müssen eine Einkommenserklärung der Steuerbehörden vorlegen.
Die Lage der Wohnung ist günstig, und potenzielle Mieter können die Immobilie auf Google Maps oder Google Streetview besichtigen, um sich ein besseres Bild von der Nachbarschaft und der Umgebung zu machen.