Dieses gemütliche Einfamilienhaus befindet sich in der Lupinestraat 12 in Den Helder. Das Objekt verfügt über eine Gesamtwohnfläche von 64,4 Quadratmetern und drei Schlafzimmer. Erbaut im Jahr 1916, bietet es eine einzigartige Mischung aus Charakter und Funktionalität.
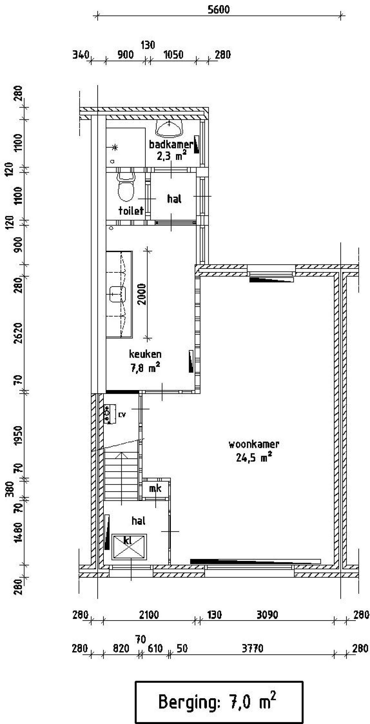
Der Innenbereich umfasst ein geräumiges Wohnzimmer von 24,5 Quadratmetern, eine Küche von 7,8 Quadratmetern mit Elektroherd und drei Schlafzimmer unterschiedlicher Größe. Das Objekt verfügt außerdem über ein Badezimmer und einen Abstellraum im Freien. Zusätzliche Ausstattungsmerkmale sind ein Garten, was es zu einer idealen Residenz für diejenigen macht, die eine friedliche Wohnumgebung suchen.
Das Objekt ist mit modernen Annehmlichkeiten wie Solarpaneelen und einer Kombitherme für eine effiziente Heizung ausgestattet. Weitere nennenswerte Merkmale sind ein Thermostat-Duscharmatur, der den Komfort des Hauses erhöht. Die Einbeziehung eines Abstellraums im Freien bietet zusätzlichen Platz für die Bewohner.
Dieses in Den Helder gelegene Objekt profitiert von den Annehmlichkeiten und Dienstleistungen der umliegenden Nachbarschaft. Potenzielle Mieter sollten die besonderen Mietvoraussetzungen beachten, einschließlich der Notwendigkeit einer Einkommensbescheinigung des Finanzamtes. Das Objekt bietet eine attraktive Gelegenheit für diejenigen, die ein charmantes und gut ausgestattetes Haus in einer wünschenswerten Lage suchen.