Dieses gemütliche Einfamilienhaus befindet sich in der De Wetstraat 37 in Den Helder. Das im Jahr 1914 erbaute Objekt bietet eine Gesamtwohnfläche von 61,5 Quadratmetern. Es verfügt über zwei Schlafzimmer, ein Wohnzimmer, eine Küche, einen Hauswirtschaftsraum und ein Badezimmer. Das Haus bietet mehrere Annehmlichkeiten, darunter einen Garten und einen externen Abstellraum.
Das Haus ist mit modernen Annehmlichkeiten wie Elektroherd und einem Zentralheizkessel gut ausgestattet. Zusätzliche Ausstattungsmerkmale sind ein Thermostat-Duschmischer und eine Falltür zum Dachboden. Das Haus wird von einer Wohnungsbaugenossenschaft verwaltet und steht zur Vermietung.
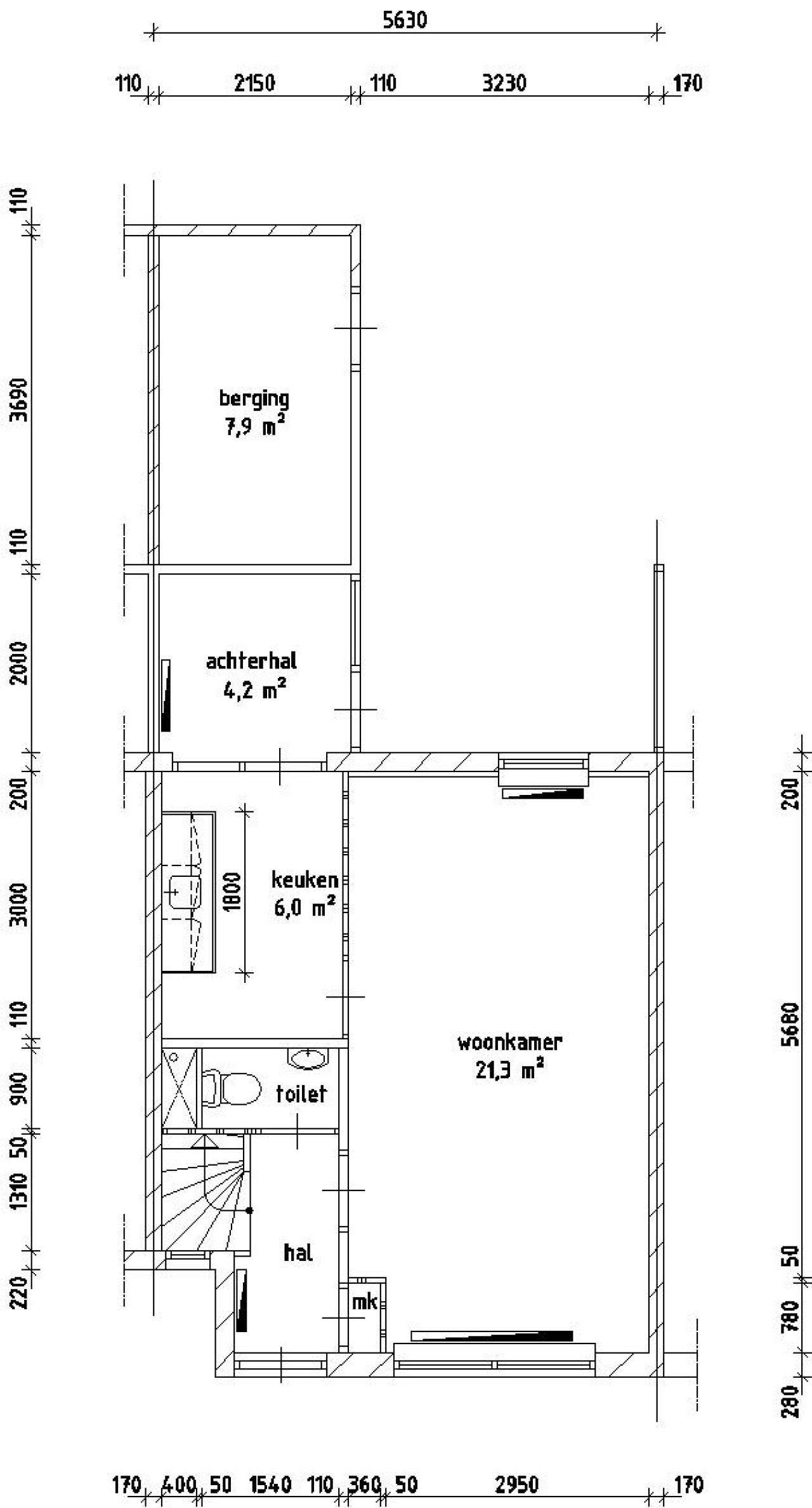
Die Aufteilung des Hauses ist wie folgt: zwei Schlafzimmer von 8,00 und 6,60 Quadratmetern, ein Wohnzimmer von 21,30 Quadratmetern, eine Küche von 6,00 Quadratmetern, ein Hauswirtschaftsraum von 4,20 Quadratmetern und ein Badezimmer von 4,70 Quadratmetern. Der externe Abstellraum ist 10,70 Quadratmeter groß.
Potenzielle Mieter sollten beachten, dass sie bei Zuteilung den Lebensregeln der Wohnungsbaugenossenschaft zustimmen müssen. Darüber hinaus müssen die Bewerber eine Einkommensbescheinigung der Steuerbehörde für sich und ihren Partner, falls zutreffend, vorlegen.