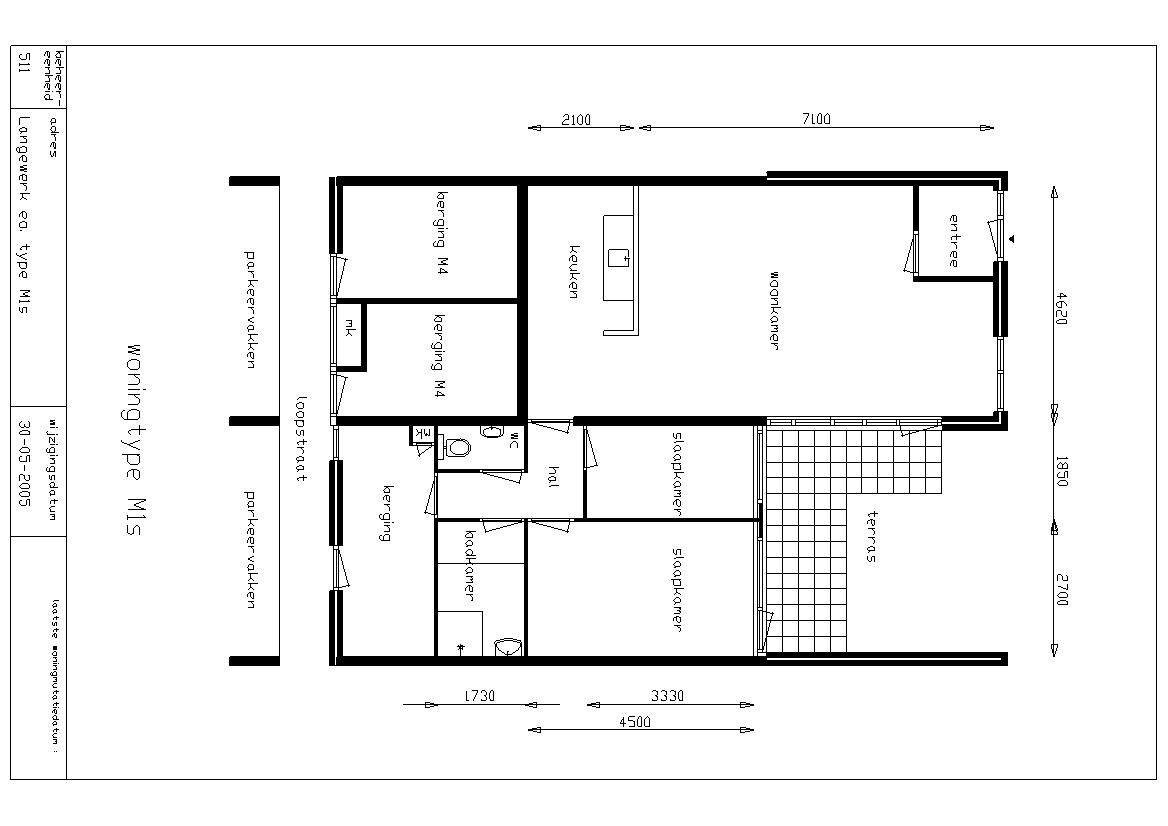
Diese charmante Erdgeschosswohnung befindet sich im Stadtteil Groene Dorp in Alphen aan den Rijn. Die Immobilie in der Pannewerk 22 bietet einen komfortablen Wohnraum mit insgesamt 2 Schlafzimmern. Das Wohnzimmer erstreckt sich über 30 Quadratmeter und bietet ausreichend Platz zur Entspannung. Die offene Küche ist gut in den Wohnbereich integriert, was für ein luftiges und geräumiges Gefühl sorgt.
Die Wohnung verfügt über einen Garten, der es den Bewohnern ermöglicht, die Natur zu genießen. Zusätzlich steht ein Abstellraum auf dem Grundstück zur Verfügung. Die Immobilie ist mit Blockheizung ausgestattet und verfügt über ein Energielabel D. Erbaut im Jahr 1977, wurde sie im Laufe der Jahre gut gepflegt. Die Nachbarschaft zeichnet sich durch ihre grüne Umgebung und die Nähe zu Annehmlichkeiten aus.
Der Komplex hat einen abgeschiedenen Charakter und grenzt an einen kleinen Spielplatz, was ihn zu einer attraktiven Option für diejenigen macht, die eine friedliche Wohnumgebung suchen. Die Aufteilung und Ausstattung der Immobilie machen sie für verschiedene Bewohner geeignet. Die Gegend um Pannewerk ist angenehm, mit ihrer Lage in der Nähe der Eisenhowerlaan, die zu ihrer Attraktivität beiträgt.
Der Mietpreis beinhaltet eine Grundmiete von 713,02 €, zuzüglich Nebenkosten und Heizkosten. Der Gesamtmietpreis beträgt 959,48 €. Die Immobilie steht zur Vermietung, vorbehaltlich Verfügbarkeit und Bewerbungsverfahren.