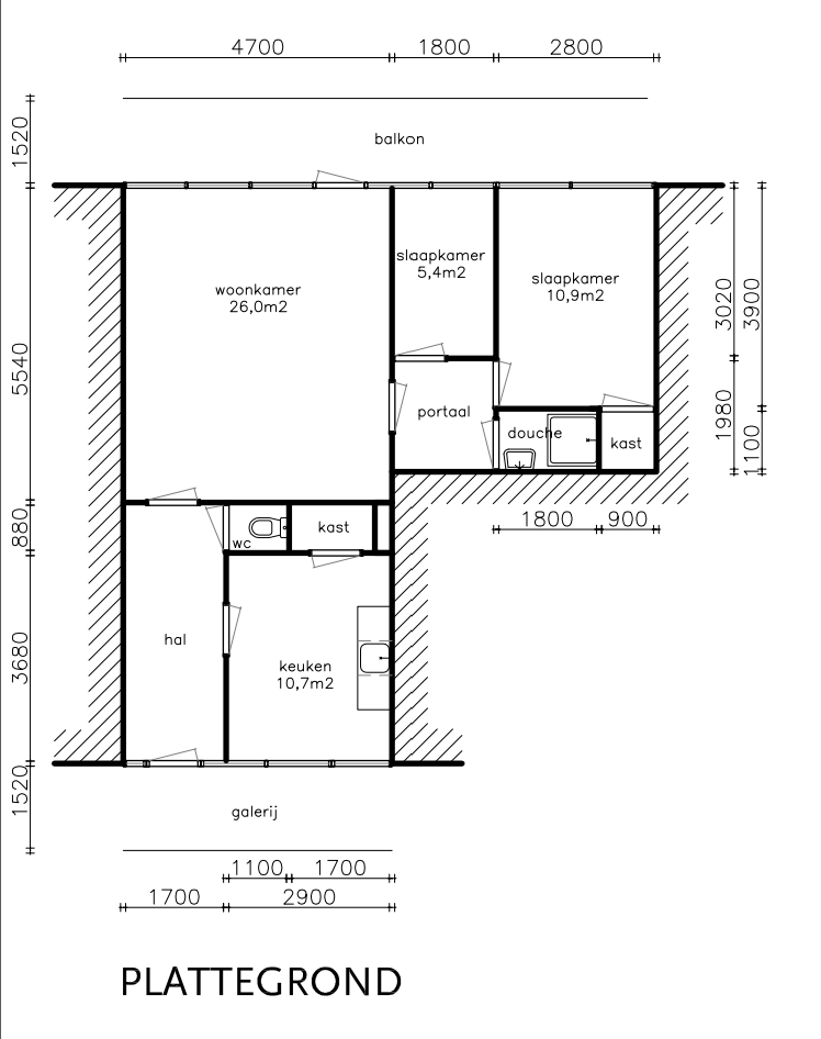
Dit appartement, gelegen aan de Buttingstraat 196 in Hoensbroek, beschikt over 2 slaapkamers en bevindt zich op de 5e verdieping van een gebouw met een lift. De totale woonoppervlakte is 73 m², waarvan de woonkamer 26 m² beslaat. Het appartement maakt deel uit van een complex gebouwd in 1973 en is voorzien van een balkon, berging en blokverwarming. De woning wordt beheerd door Vincio Wonen, die een nieuwe huurder zal selecteren op basis van 'Anders toewijzen', waarbij niet alleen de inschrijftijd maar ook de motivatie en zelfredzaamheid van de huurder in acht worden genomen.
Het appartement ligt dicht bij diverse voorzieningen. Het heeft een energielabel D en een Energie Index van 2.00. De slaapkamers variëren in grootte van 5 tot 11 m². De woning heeft geen tuin of zolder. De totale huurprijs bedraagt € 751,03, inclusief € 682,96 kale huur en € 68,07 servicekosten.
De wijk Hoensbroek-De Dem biedt een prettige woonomgeving. Het appartement is goed ingericht voor comfortabel wonen, met zijn functionele indeling en voorzieningen zoals het balkon en de berging. De locatie is handig voor diegenen die op zoek zijn naar een huurwoning in Hoensbroek.
De woning is te huur in overleg met de makelaar. Potentiële huurders wordt geadviseerd contact op te nemen met Vincio Wonen voor meer informatie en het plannen van een bezichtiging.