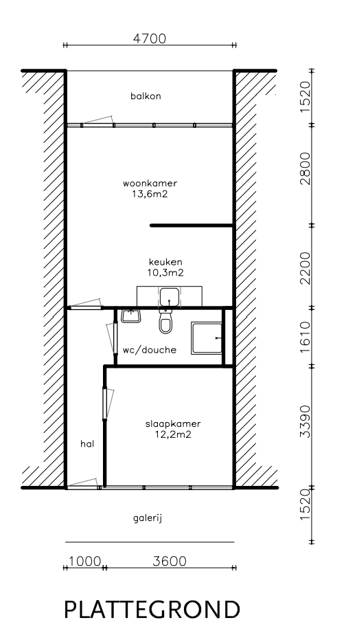
Dit appartement is gelegen aan de Buttingstraat 108 in Hoensbroek, een deel van de buurt Hoensbroek-De Dem. De woning betreft een appartement met lift en bevindt zich op de 2e verdieping. Het heeft een totale woonoppervlakte van 48 m² en is gebouwd in 1973.
Het appartement beschikt over één slaapkamer met een totale slaapkamer oppervlakte van 12 m², een open keuken en een woonkamer met een oppervlakte van 24 m². Extra voorzieningen zijn onder andere een balkon en een berging. De woning heeft een energielabel 'D' en maakt gebruik van blokverwarming voor het verwarmingssysteem.
De buurt biedt diverse voorzieningen op relatief korte afstand. De exacte beschikbaarheid is in overleg met de makelaar. De totale huurprijs voor het appartement bedraagt € 543,96, inclusief een kale huurprijs van € 477,20 en servicekosten van € 66,76.
Het appartement wordt aangeboden door Vinci Wonen, een makelaarskantoor. Voor meer informatie of het plannen van een bezichtiging, wordt aangeraden direct contact met hen op te nemen.