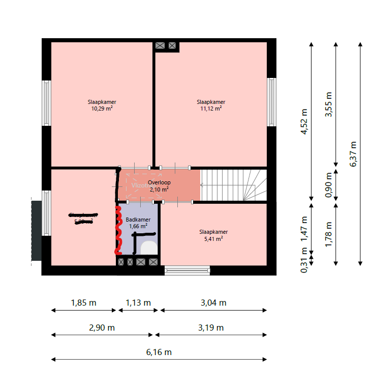
Deze hoekwoning is gelegen in de wijk Lindenheuvel in Geleen. De woning heeft een totale woonoppervlakte van 67 m² en beschikt over 3 slaapkamers met afmetingen van 5, 10 en 11 m². De woning heeft een dichte keuken die gerenoveerd zal worden, waarna deze voorzien wordt van elektrische kookgelegenheid. Verder beschikt de woning over een tuin, maar heeft geen balkon.
De woning is gebouwd in 1961 en heeft een energielabel B, wat duidt op een goede energie-efficiëntie. Het is voorzien van zonnepanelen en heeft een eigen centrale verwarmingsinstallatie. De woning is te huur voor een kale huurprijs van €713,02, met een totale huurprijs van €730,40 inclusief servicekosten.
De woning is zeer geschikt voor diegenen die op zoek zijn naar een ruime woonoplossing met meerdere slaapkamers. De locatie in Lindenheuvel biedt een prettige woonomgeving. De aanwezigheid van zonnepanelen en een relatief goed energielabel suggereert dat de woning energiezuinig is.
De indeling en voorzieningen van de woning maken het een aantrekkelijke optie voor potentiële huurders. De aanwezigheid van een tuin draagt bij aan de aantrekkelijkheid van de woning en biedt buitenruimte. De renovatie van de keuken is een extra pluspunt, zodat dit deel van de woning up-to-date en klaar voor modern leven is.