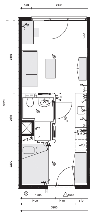
Dit studio-appartement is gelegen aan de Calslaan 60-57 in Enschede, nabij de campus van de Universiteit Twente. Het appartement bevindt zich op de eerste verdieping en heeft een totale woonoppervlakte van 23 vierkante meter. Het is een zelfstandige unit met een eigen keuken en badkamer. Het gebouw is gebouwd in 2007 en heeft een energielabel A, wat duidt op energiezuinigheid. Het appartement wordt ongemeubileerd verhuurd, en de meubels op de afbeeldingen dienen enkel ter illustratie.
Het appartement is voorzien van moderne voorzieningen, waaronder internet en voorschot gas, water en elektriciteit. Tevens beschikt het over een lift en parkeermogelijkheden. De woonkamer is circa 20 vierkante meter, en er zijn geen aparte slaapkamers. Het appartement heeft geen balkon of tuin. De huurprijs is inclusief servicekosten en verwarmingskosten, wat een compleet pakket voor huurders is.
De locatie is ideaal voor zowel studenten als professionals, vanwege de nabijheid van de campus van de Universiteit Twente. De omgeving is goed bereikbaar en het appartement is geschikt voor wie op zoek is naar een moderne en comfortabele woonruimte. Huurtoeslag is mogelijk voor personen van 21 jaar en ouder, afhankelijk van de geldende criteria.
De totale huurprijs voor het appartement bedraagt €761,88, bestaande uit een kale huur van €618,79, servicekosten van €93,09 en verwarmingskosten van €50,00. Een borg van €250,00 is vereist. Het appartement is beschikbaar per 14-02-2026.