Deze moderne woning bevindt zich aan de Sluisdijkstraat 26 in Den Helder. Het is een appartement op de eerste verdieping met een lift, gebouwd in 2019, en heeft een totale woonoppervlakte van 55,6 vierkante meter. Het appartement heeft één slaapkamer en is ontworpen om bewoonbaar te zijn voor maximaal twee personen. De woning is uitgerust met moderne voorzieningen, waaronder een open keuken en elektrische kookfaciliteiten.
Het appartement is goed uitgerust met diverse kenmerken zoals een balkon, externe opslag en een lift. Het omvat ook moderne gemakken zoals een video intercom, een vrijstaand toilet en een thermostatische douchekraan. De woning is ontworpen met energie-efficiëntie in gedachten, met zonnepanelen en een cv-combiketel voor verwarming.
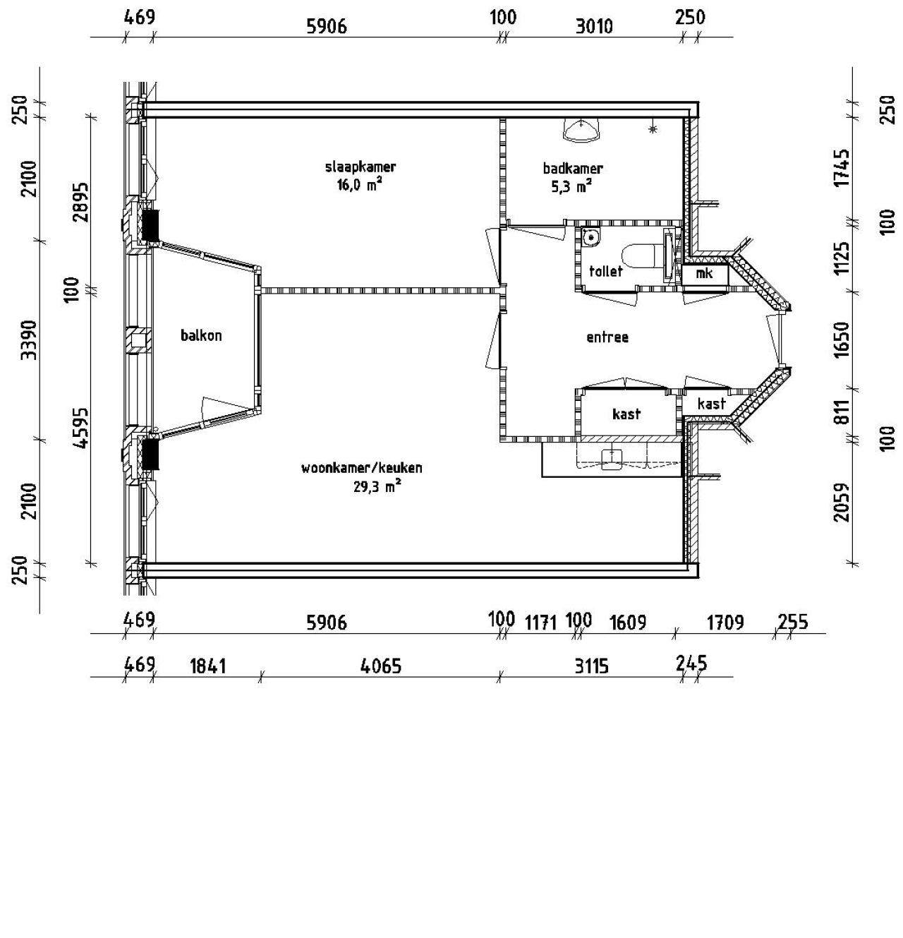
De indeling van het appartement omvat een slaapkamer van 16 vierkante meter, een woonkamer van 22,9 vierkante meter, een keuken van 6,4 vierkante meter en een badkamer van 5,3 vierkante meter. Er is ook externe opslagruimte van 5 vierkante meter. Het appartement wordt beschreven als 'levensloopbestendig', wat aangeeft dat het ontworpen is om aanpasbaar te zijn voor verschillende levensfasen.
De huurgegevens omvatten een netto huur van €852,45, servicekosten van €47,81, wat de totale maandelijkse kosten €900,26 maakt. De woning is beschikbaar voor verhuur vanaf 19 januari 2026.